点上方蓝字可关注 微信号:装修33天
▲ 建筑面积200平,入户右侧墙面用鱼骨纹瓷砖拼搭黑铁与原木,增加储物又显得美观不单调
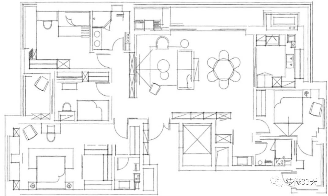
▲ 平面布置图
▲ 从入户视角看室内,客餐厅一体格局,视觉上没有阻隔,空间更加宽敞开阔
▲ 客厅灰色系地砖搭配浅灰色墙面,大象灰的皮沙发色泽温润,空间中添加部分金属元素搭配出精致质感
▲ 阳台与客餐厅的间隔用百叶门窗来替换窗帘功能,远远的一面蒂芙尼蓝墙面,整体空间优雅活泼
▲ 餐厅选择圆桌搭配顶面小白风叶吊扇,大大的的落地百叶窗让室内每一寸空间都铺满阳光
▲ 餐厅望向客厅视角
▲ 厨房灰色地砖搭配白色面包砖加美缝,白色U型橱柜增加竖柜设计,打造出简洁干净的料理空间
▲ 客卫地面自由拼贴六角砖加上个性放射花纹,搭配墙面白砖加美缝,空间多了几分现代摩登质感
▲ 次卧整体柔和的色调,搭配原木质感,点缀现代软装,给人简洁明净,自然温馨的感觉
▲ 女儿房整体以粉色为基调,搭配白色护墙,墙面点缀趣味装饰,打造甜美就寝空间
▲ 女儿房连接阳台,打造休闲一角
▲ 男孩房白色搭配木色,点缀一抹蓝色制造清新视觉,三角图案墙纸作背景整洁有序,高低床与储物飘窗各尽其功能
▲ 儿童房卫生间采用一种不同风格的六角砖铺贴出灵动视觉,双台盆设计提高使用效率
▲ 主卧木色地板加灰色墙面,点缀艺术装饰画与对称悬空金属吊灯,简约舒适中透露温馨气质
▲ 卧室侧墙两扇玻璃轨道移门为衣帽间入口
▲ 主卫是三个卫生间中面积最小的,采用过渡色系瓷砖铺贴清爽空间,丝毫没有压迫感,整体恬淡清新
设计 | 文青室内设计(杭州)
微信:13588798462
后台回复「文青」可以看更多作品
媒体转载请注明装修33天并保留设计师联系方式
欢迎业主、设计师、装修公司免费投稿照片
装修33天商务合作微信:king194316
松爷店铺掌柜微信:yejia1701
文青室内设计其他作品推荐,点击下图查看120平现代简约六口之家 寻求空间利用的本质
实用装修指南
装修33天 🏡 实用装修指南
喜欢我们的文章就随手转发到您朋友圈吧