点上方蓝字可关注 微信号:装修33天
▲ 使用面积100平,设计师以最经典的黑白灰三色进行搭配,带来整室优雅与精致的视觉感受
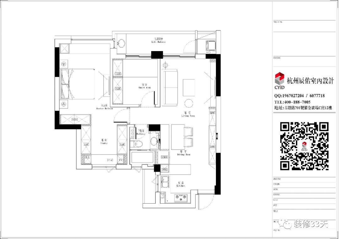
▲ 平面布置图
▲ 入户右侧设置一组置顶通柜,右下角留空方便置物且不显柜体呆板,木饰面材质增添空间温润色调
▲ 入户左侧即为开放式餐厨设计,保证了空间的采光与空气的流动性,中性色橱柜显的厨房清爽有格调
▲ 餐厅区域通过卡座设计,既满足功能需求,也使得主过道更加宽敞
▲ 客厅通铺灰色哑光地砖,搭配浅灰色地毯规划场域,黑白拼接的茶几组造型圆润
▲ 极具现代感的装饰画,彰显时尚与质感的沙发,艺术品的点缀,带来优雅与精致的视觉感受
▲ 留白的电视背景墙,木作黑色与木色电视柜与入户系统柜连接,材质与用色相互呼应,让空间呈现一体化视觉
▲ 进入主卧视角
▲ 主卧充沛的光线让棕咖色的床头背景不显压抑,利用飘窗角落木作储物竖柜,增添收纳空间
▲ 配色上通过深浅对比,打造时尚利落的空间,亚麻色床品营造出静谧且宁和的睡眠环境
▲ 在主卧中配置书房与衣帽间,机能结合,提高使用率
▲ 卫生间整体通铺仿石纹瓷砖,搭配灰色木质柜门,底部架空延伸地面空间
设计 | 辰佑设计(杭州)
微信:vi0619 QQ:6077718
后台回复「辰佑」可以看更多作品
媒体转载请注明装修33天并保留设计师联系方式
欢迎业主、设计师、装修公司免费投稿照片
装修33天商务合作微信:king194316
松爷店铺掌柜微信:yejia1701
辰佑设计其他作品推荐,点击下图查看136平现代轻奢美宅 时尚精致软装打满分
实用装修指南
装修33天 🏡 实用装修指南
喜欢我们的文章就随手转发到您朋友圈吧