点上方蓝字可关注 微信号:装修33天
▲ 建筑面积120平,总造价35万,入户一组深木色储物柜作鞋柜使用,下方留空放置鞋子,另一边为厨房入口
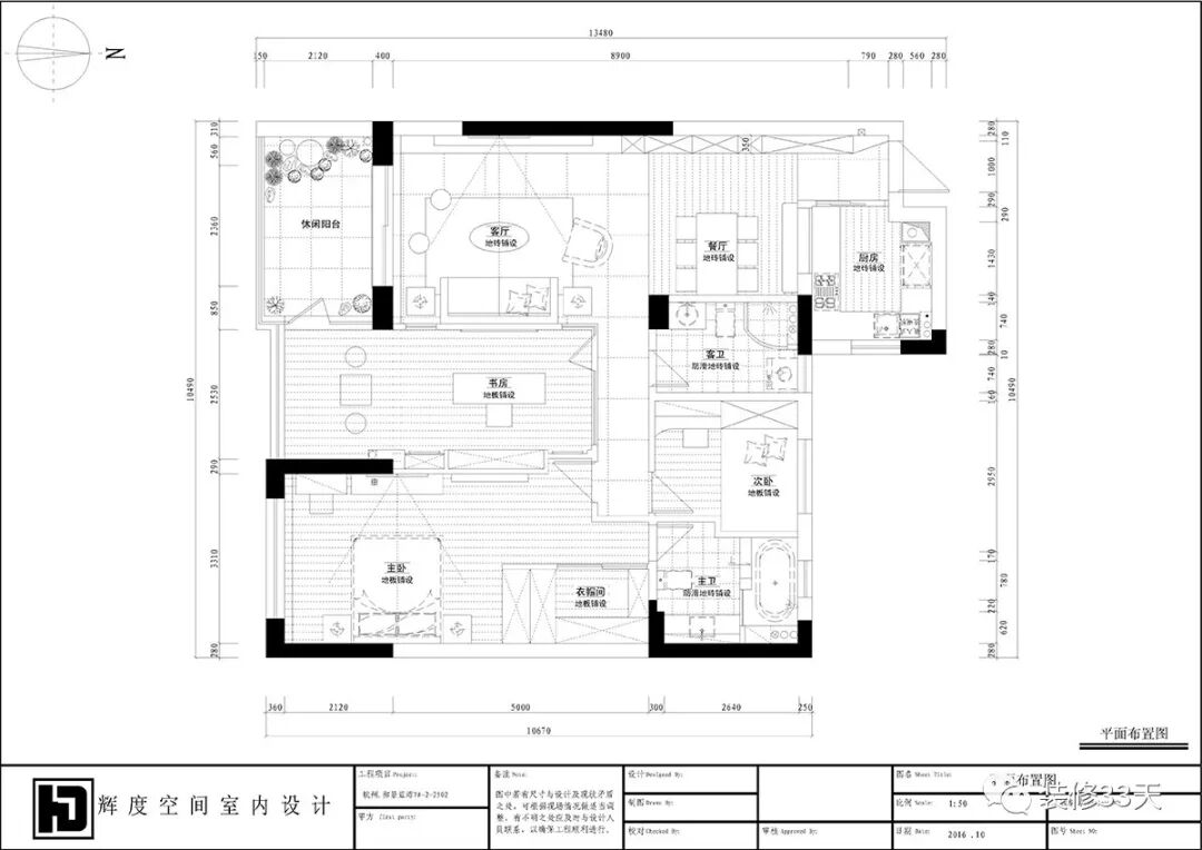
▲ 平面布置图
▲ 入户视角,浓浓的和风气息
▲ 餐厅地板砖搭配木饰面吊顶,一幅和风装饰画点缀背景墙,棉麻质感吊灯制造温馨视觉效果
▲ 餐厅望向厨房,开一个大窗口,打造日式居酒屋的感觉
▲ 居酒屋设计灵感来自《深夜食堂》,丰富日式主题概念,同时串联厨房与餐厅空间
▲ 厨房采用纯黑色橱柜,搭配白色料理台,加入木纹砖点缀,简洁素朴
▲ 餐厨区域望向客厅视角
▲ 客厅地面通铺浅色哑光地砖,搭配大张纯色地毯,顶面装一盏吸顶灯,整室呈现素雅格调
▲ 舒适布艺家具搭配深色木元素点缀,和风装饰画与餐厅呼应,烘托整室主题
▲ 米白色电视背景,搭配深木色电视框架与地台,日式风情与现代格调完美融合
▲ 将阳台打造日式庭院的感觉,呈现出居家主人的个性与品位
▲ 走廊端景,书房局部墙面用玻璃隔断代替,让空间更加通透
▲ 书房现代简约的空间,木色书桌后方木作整墙展示柜作背景,收藏业主从各地搜集来的手办
▲ 书房的一角放置业主淘来的日式暖桌,在冬天的时候在这里看书是一种享受
▲ 日式必不可少的榻榻米设计,深浅色调的空间兼具储物与客卧机能
▲ 榻榻米一旁设计架空写字台与吊柜,增加卧室阅读区
▲ 主卧地面通铺木地板,用木饰面打造半高背景墙,上下分开加入灯带,照在木质纹壁纸上,空间更具品质感
▲ 床尾衣架挂起和服点缀日式韵味空间
▲ 采用玻璃作隔墙,打造透明衣帽间,增加空间通透感
▲ 主卫地面与墙面通铺黑色瓷砖,与黑色浴室柜呼应,搭配白色卫浴,空间个性而私密
设计 | 辉度空间设计(杭州)
微信:18072920063
后台回复「辉度」可以看更多作品
媒体转载请注明装修33天并保留设计师联系方式
欢迎业主、设计师、装修公司免费投稿照片
装修33天商务合作微信:king194316
松爷店铺掌柜微信:yejia1701
辉度空间设计其他作品推荐,点击下图查看150平素净台式三室 灰调与木质元素婚房
实用装修指南
装修33天 🏡 实用装修指南
喜欢我们的文章就随手转发到您朋友圈吧