点上方蓝字可关注 微信号:装修33天
▲ 建筑面积85平,半包10万,总造价18万,入户木作鞋柜和酒柜结合中岛一体式设计
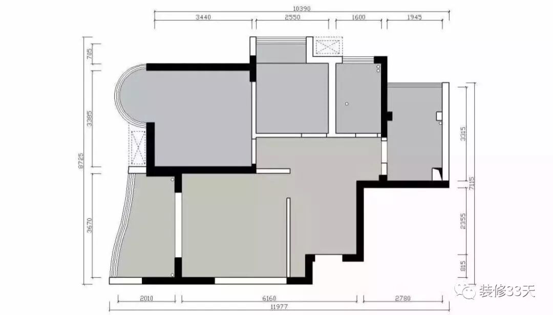
▲ 原始结构图
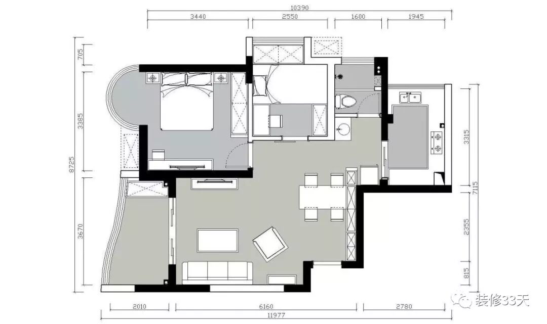
▲ 平面布置图
▲ 餐厅中岛与餐桌以及酒柜的一体式使用,既满足餐厅的功能需求,同时增添大量的储物空间
▲ 空间以天空蓝为主调,背景辅以幻彩马赛克,同时点缀柠檬黄提亮
▲ 客厅定位小清新式北欧风格,用干净清爽的硬装造型来展现空间原有的模样
▲ 白色乳胶漆墙面与木色的地板相搭配,加铺一张大地毯,营造简单时尚的居家氛围
▲ 空间色彩上采用穿插渐变的手法,打破了常规的配色理念使空间显得更加具有年轻鲜活力
▲ 客厅选用木质与棉麻材质类家具,点缀黑色铁件装饰,为空间带来柔软与温馨,并提升居家舒适度
▲ 电视背景无任何过多修饰,木色电视柜保留了家具的原生态质感
▲ 阳台延续蓝色基调,错落台面与吊柜设计,美观实用
▲ 厨房灰色地砖搭配白色墙砖,清新绿的定制橱柜搭配白色吊柜,整洁大方
▲ 次卧木作榻榻米,点缀童趣软装,打造兼具收纳与休闲的弹性空间
▲ 主卧纳入弧度阳台扩大使用空间,木作置顶大衣柜,满足不同的收纳需求
▲ 留白墙面点缀抽象简框画作背景,木元素家具与金属元素灯饰碰撞出自然与质感
▲ 卫生间干湿分离,提高使用效率
设计 | 飞墨设计(合肥)
微信:861500114 电话:18019993625
后台回复「飞墨」可以看更多作品
媒体转载请注明装修33天并保留设计师联系方式
欢迎业主、设计师、装修公司免费投稿照片
装修33天商务合作微信:king194316
松爷店铺掌柜微信:yejia1701
飞墨设计其他作品推荐,点击下图查看半包7.8万装148平美式复古三居
实用装修指南
装修33天 🏡 实用装修指南
喜欢我们的文章就随手转发到您朋友圈吧