点上方蓝字可关注 微信号:装修33天
▲ 建筑面积92平,造价30万(不含家电),入户左右两边木作系统柜,兼具换鞋区与收纳机能,美观且实用
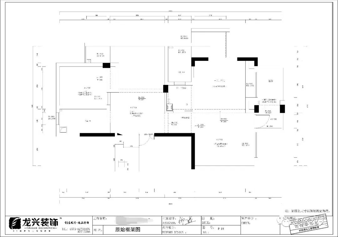
▲ 原始结构图
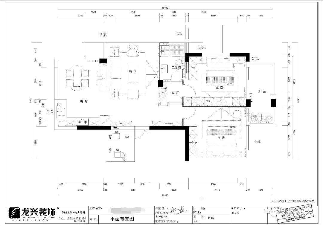
▲ 平面布置图
▲ 客厅地面菱形铺贴仿石纹砖,造型吊顶装一盏美式吊灯,白色与绿色系墙面搭配,层次分明
▲ 清新色调的客厅,搭配卡其色与姜黄色沙发,呈现美式休闲格调
▲ 电视背景以对称的形式打造,左侧为假护墙,后侧是隐藏式零食柜
▲ 客餐厅以吧台作分割,既实现了客厅空间的大景深又增加生活上的互动
▲ 餐厅延续客厅的灰色地砖,局部搭配青色墙砖,采用石膏线打造美式线性背景
▲ 餐厨空间以造型吊顶与餐厅家具作场域区分
▲ 厨房延续餐厅的青色墙砖,搭配白色定制橱柜,简洁干净
▲ 利用过道打造收纳柜体,为空间增添储物空间
▲ 次卧整体色调延续公领域的白+绿,搭配卡其色高背床,呈现简美舒眠空间
▲ 主卧地面通铺木质地板,背景墙的设计与次卧呼应,深色美式家具搭配拼色窗帘,简洁大气
▲ 床尾与床侧木作大面积系统柜,储物容量直接媲美独立衣帽间
▲ 卫生间拼贴冷暖色瓷砖,顶线拼贴与花砖腰线成为空间亮点
▲ 业主与设计师合影
设计 | 龙兴装饰(嘉兴)
微信:c1j2m4 电话:18702501281
后台回复「龙兴」可以看更多作品
媒体转载请注明装修33天并保留设计师联系方式
欢迎业主、设计师、装修公司免费投稿照片
装修33天商务合作微信:king194316
松爷店铺掌柜微信:yejia1701
龙兴装饰其他作品推荐,点击下图查看130平现代自然三居 木色元素简洁质朴
实用装修指南
装修33天 🏡 实用装修指南
喜欢我们的文章就随手转发到您朋友圈吧