点上方蓝字可关注 微信号:装修33天
▲ 建筑面积89平,总造价30万,入户木作嵌入式分体鞋柜,烟墨灰背景点缀绿色简框画作端景
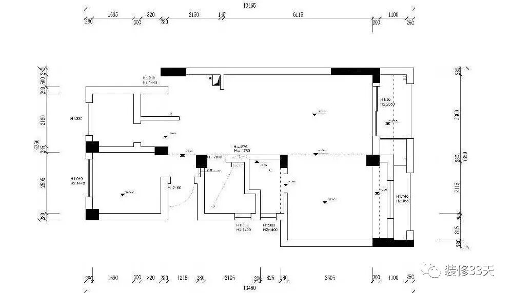
▲ 原始结构图
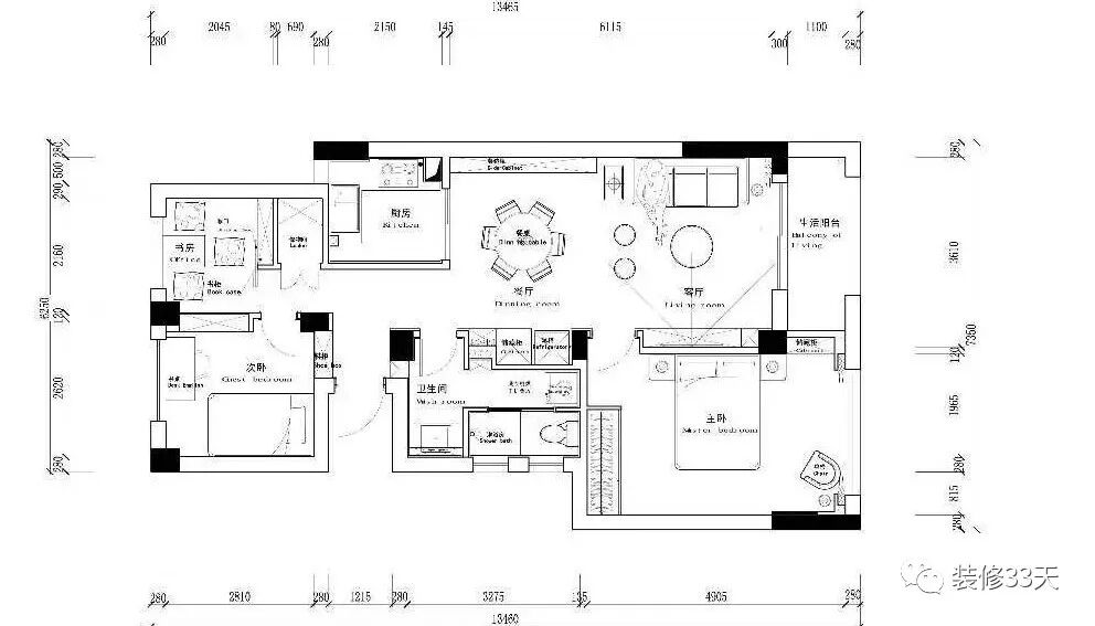
▲ 平面布置图
▲ 客厅地面通铺原木色地板,简洁顶面用点光源代替主灯
▲ 黑白灰点缀木元素的家具搭配绿植,轻盈舒适并具自然清新的格调
▲ 留白墙面点缀两幅装饰画作沙发背景墙
▲ 白色与木色电视背景,延伸木饰面隐藏主卧门,并留出冰箱位置
▲ 客厅望向餐厨区域
▲ 餐厅与厨房相邻,以玻璃移门为隔断,圆形餐桌呼应圆形吊灯,搭配黑色餐椅,简约温馨
▲ 餐厅以整排书柜为背景,空间整齐利落,呼应客厅的木色
▲ 户外木打造休闲阳台,延续木色基调,一盏玻璃壁灯,精致趣味
▲ 儿童活动室木地板搭配蓝灰色墙面,布置儿童印第安帐篷,童趣温馨
▲ 儿童房充满收纳机能的一角
▲ 主卧蓝灰色墙面装对称壁灯作床背景,深浅木色家具搭配让空间更赋层次
▲ 床尾墙面点缀尺寸不一的简框画作点缀,靠窗增添休闲一隅
▲ 白色小方砖搭配黑色美缝,木纹浴室柜点缀黑色五金件,温馨自然
▲ 不大的卫生间作四分离设计,各功能区互不干扰,实现空间最大化利用
设计 | 陌上设计(杭州)
微信:MS969173 电话:0571-87031776
后台回复「陌上」可以看更多作品
媒体转载请注明装修33天并保留设计师联系方式
欢迎业主、设计师、装修公司免费投稿照片
装修33天商务合作微信:king194316
松爷店铺掌柜微信:yejia1701
陌上设计其他作品推荐,点击下图查看180平现代新中式大宅 阳台端景赋有禅意
实用装修指南
装修33天 🏡 实用装修指南
喜欢我们的文章就随手转发到您朋友圈吧