点上方蓝字可关注 微信号:装修33天
▲ 建筑面积36平,造价25万,位于上海静安区,房子虽小,但地段好,位置赞,就连房子外部都人见人爱
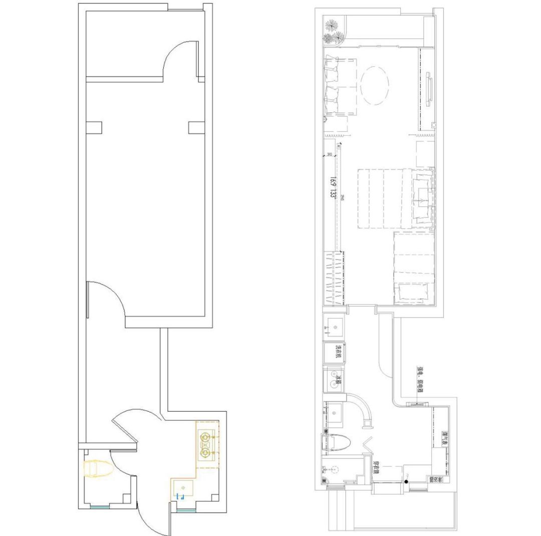
▲ 原始结构图&平面布置图
▲ 入户设计木色收纳柜与衣帽架机能,加上简框画背景与绿植的点缀,一进门给人轻松愉悦的心情
▲ 利用原先尴尬的过道打造功能齐全的小厨房,不锈钢台面木色柜门,整洁有序
▲ 厨房对面的一段空墙布置出一个小吧台,既作厨房辅助,又可兼休闲阅读区
▲ 采用圆弧玻璃作隔墙,扩大卫生间使用空间的同时也保证了走道的通过性
▲ 卫生间灰砖地面与工字铺小白砖,搭配木色元素浴室家具,材质与风格与厨房呼应
▲ 扩大后的卫生间不仅增加浴室柜,还增设出宽敞舒适的淋浴区
▲ 卧室木色地板搭配暖色背景墙,一张高低床,一张双人床,结合整墙书柜与衣柜组打造功能起居室
▲ 设计升降式投影取代传统电视机,在卧室中可以躺着看电影
▲ 木质大床搭配老式箱体作床头柜,金色吊灯渲染温馨氛围,一边的收纳竖柜功能实用
▲ 高低床下方为写字台,可以学习与办公
▲ 借用部分天井位置,进一步扩大使用空间
▲ 在靠近天井的位置增加活动区,灰绿色背景搭配轻巧的家具,创造清新的休闲厅
▲ 木作收纳机能的电视柜作背景,休闲厅与卧室可以通过布帘,随时切换出两个独立的空间
▲ 玻璃门外是半开放式天井小院,鹅卵石地坪与墙上布满的绿植,让自然景色进入惬意生活
独立设计师 | Tina_wang(上海)
微信:Tina_wang_design
后台回复「Tina」可以看更多作品
媒体转载请注明装修33天并保留设计师联系方式
欢迎业主、设计师、装修公司免费投稿照片
装修33天商务合作微信:king194316
松爷店铺掌柜微信:yejia1701
Tina_wang 其他作品推荐,点击下图查看93平小美混搭两室 美丽开放厨房大露台
实用装修指南
装修33天 🏡 实用装修指南
喜欢我们的文章就随手转发到您朋友圈吧