点上方蓝字可关注 微信号:装修33天
▲ 建筑面积124平,总造价35万,是只有一个房间有上下两层的复式楼,博物馆工作的女业主对中式有种情怀,又对法式难以割舍
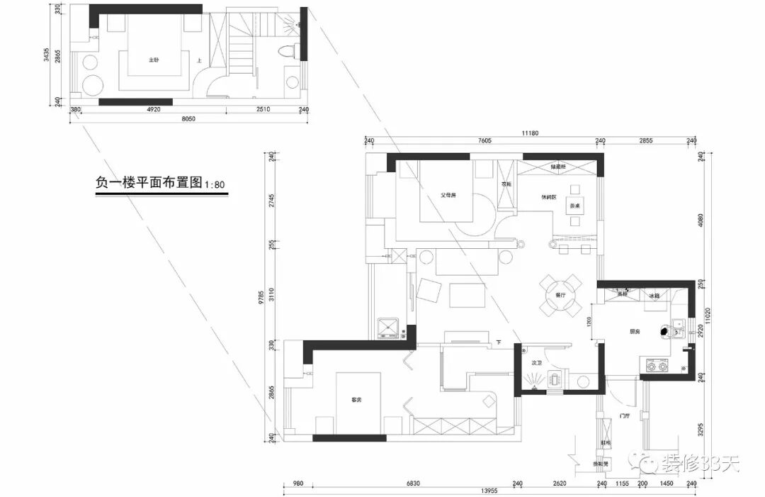
▲ 平面结构图
▲ 平面布置图
▲ 客厅水泥色瓷砖地面,与电视墙上方青石隔断呼应,左右对称门洞,左边是下楼进主卧的入口,右侧是书房与次卧入口
▲ 整体空间以白色和原木为基调,沙发背景以中式纹样线条打造
▲ 餐厅与客厅互通,整体搭配亦中亦美
▲ 从餐厅可以看到半开放式茶室,采用徽派建筑的屋檐来为区域划分,透过门洞给人中式凉亭的景深感
▲ 茶室内部榻榻米地台,可升降桌,水墨画柜门作背景,在这看书,喝茶,小憩,舒适悠闲
▲ 曲径通幽的上方是可以敞开的书房,还可以透过中式折叠窗看到客厅,各空间相互独立又交融贯通
▲ 客卧设置与书房相邻,空间整体以中式元素打造东方风情
▲ 父母房,一面深蓝花鸟壁纸点缀造型壁灯作床背景,法式床架,中式床头柜,静谧又赋有层次
▲ 主卧木色地板搭配文化砖床背景,蓝色定制实木床架,打破黑白灰的沉寂,赋予空间一份活力
▲ 采用中式经典元素作软装布置,有内涵却不显老气
设计 | 桃弥空间设计(武汉)
微信:18627061616
后台回复「桃弥」可以看更多作品
媒体转载请注明装修33天并保留设计师联系方式
欢迎业主、设计师、装修公司免费投稿照片
装修33天商务合作微信:king194316
松爷店铺掌柜微信:yejia1701
桃弥空间设计其他作品推荐,点击下图查看88平北欧乡村二居 给父母一个温馨的家
实用装修指南
装修33天 🏡 实用装修指南
喜欢我们的文章就随手转发到您朋友圈吧