点上方蓝字可关注 微信号:装修33天
▲ 建筑面积80平,使用面积68平,总造价20万,入户系统柜兼具鞋柜与储物以及卡座功能
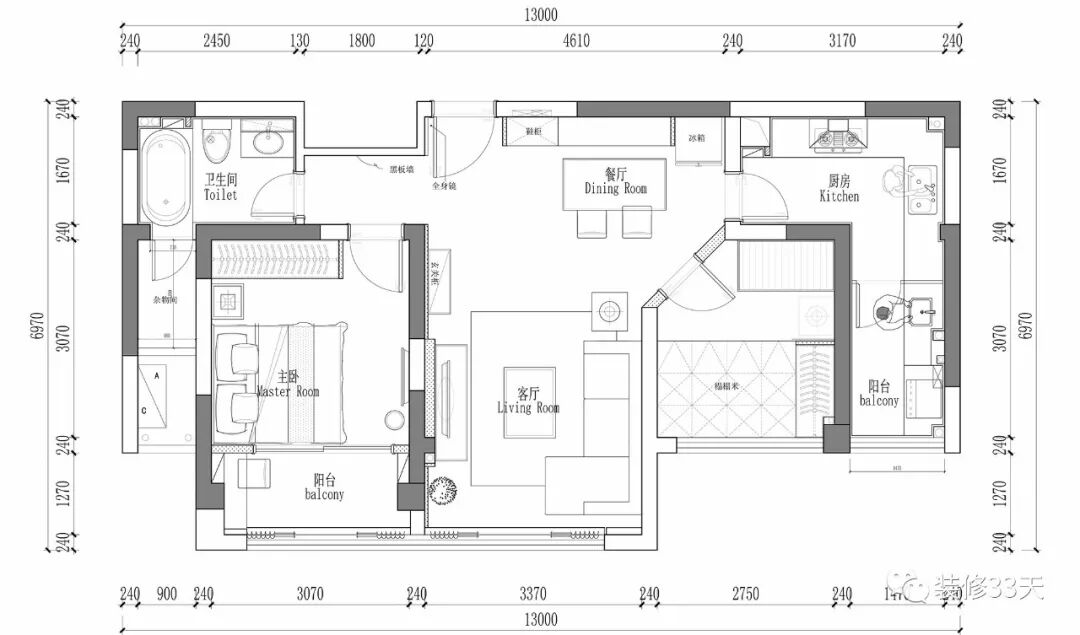
▲ 平面布置图
▲ 深木色餐桌椅搭配金色元素吊灯,营造安静不失温馨的就餐氛围
▲ 厨房与餐厅相邻,白框玻璃门作隔断,黑色瓷砖搭配白色橱柜,干净且层次分明
▲ 厨房连接生活阳台,以玻璃门作隔断
▲ 客餐厅互通,墙面斜切设计,改变卧室门片方向,增加公共区面积
▲ 客厅地面通铺木色地板,地台式阳台打造休闲一角,又为公领域注入充足采光
▲ 米色布艺沙发搭配冷色调的抽象画,点缀蓝色的抱枕,丰富了整个色调
▲ 采用石膏线条勾勒出电视背景墙,同款深色电视柜与茶几让整体空间更为协调
▲ 深色斗柜布置玄关,清新优雅,呈现出简约美式的温馨感
▲ 在过道上设计的整面黑板墙,给孩子一个放肆涂鸦的区域,也给空间增添了活泼的趣味
▲ 儿童房以蓝灰为基调,木作榻榻米床铺连接柜体,格子床品与窗帘呼应
▲ 主卧延续蓝灰色调,搭配木元素家具与木色地板,自然而轻盈
▲ 将主卧阳台打造成静谧的书房,兼具阅读与休闲机能
▲ 白色调的卫生间,加入黑色线条,干净整洁,玻璃隔断通透实用
设计 | 晓安空间设计(苏州)
微信:15151484530
后台回复「晓安」可以看更多作品
媒体转载请注明装修33天并保留设计师联系方式
欢迎业主、设计师、装修公司免费投稿照片
装修33天商务合作微信:king194316
松爷店铺掌柜微信:yejia1701
晓安空间设计其他作品推荐,点击下图查看125平舒适感北欧风 删繁就简无需花哨
实用装修指南
装修33天 🏡 实用装修指南
喜欢我们的文章就随手转发到您朋友圈吧