点上方蓝字可关注 微信号:装修33天
▲ 建筑面积89平+赠送面积11平,总造价23万(包含所有软装配饰),完美控制预算
▲ 原始结构图
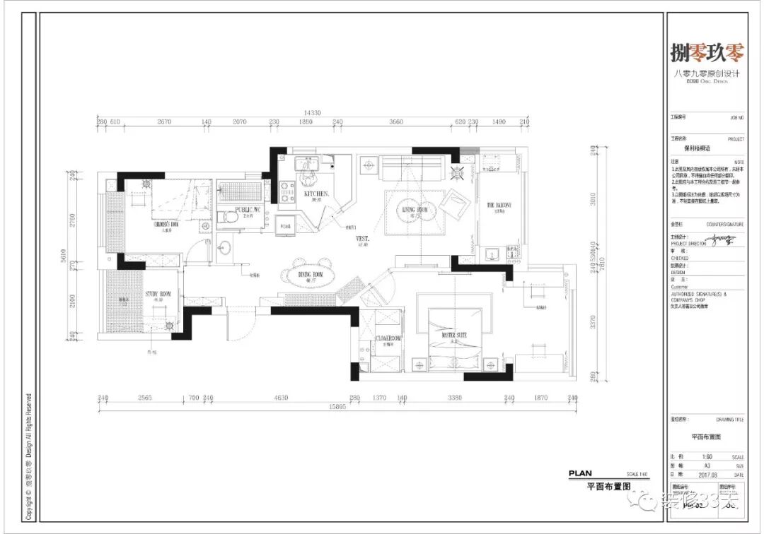
▲ 平面布置图
▲ 客厅,地面白色石纹砖搭配极简顶面,简单的线条给人宽敞视觉感
▲ 灰色背景点缀三幅趣味简框画,搭配浅灰布艺沙发,灰绿色靠枕与壁灯呼应
▲ 利用阳台暗角,添置层板展示机能,焦糖色皮质单椅与木质茶几,为空间增添一抹暖色调
▲ 铺一张蓝灰基调大地毯,呈现完整的北欧调软装空间
▲ 简约无过多修饰的电视背景,顶面加装可升降投影幕布
▲ 客厅望向餐厨区
▲ 主卧与厨房对应设计两面斜切墙,留出开阔过厅作就餐区
▲ 厨房,白色基调搭配木纹柜门,创造简单干净的料理场域
▲ 书房,靠窗木作榻榻米,一组吊柜作半开放式书架
▲ 蓝紫基调的主卧,纳入阳台,延展卧室的使用面积并增添室内采光
▲ 褐紫色床背景点缀金色墙饰,卡其色布艺大床与黑色悬挂吊灯,满足舒适性并带些小个性
▲ 纳入阳台,摆放成品书桌书架,打造主卧室的休闲一角
设计 | 捌零玖零设计(杭州)
设计师:李世嘉 电话:0571-88271637
微信:hzsj8090
后台回复「捌零玖零」可以看更多作品
媒体转载请注明装修33天并保留设计师联系方式
欢迎业主、设计师、装修公司免费投稿照片
装修33天商务合作微信:king194316
松爷店铺掌柜微信:yejia1701
捌零玖零设计其他作品推荐,点击下图查看120平现代木色混搭三居 利用过道做书房与洗手台
实用装修指南
装修33天 🏡 实用装修指南
喜欢我们的文章就随手转发到您朋友圈吧