点上方蓝字可关注 微信号:装修33天
▲ 建筑面积190平的叠复式结构,造价55万,入户玄关设计清水混凝土效果,点缀红色铁艺楼梯
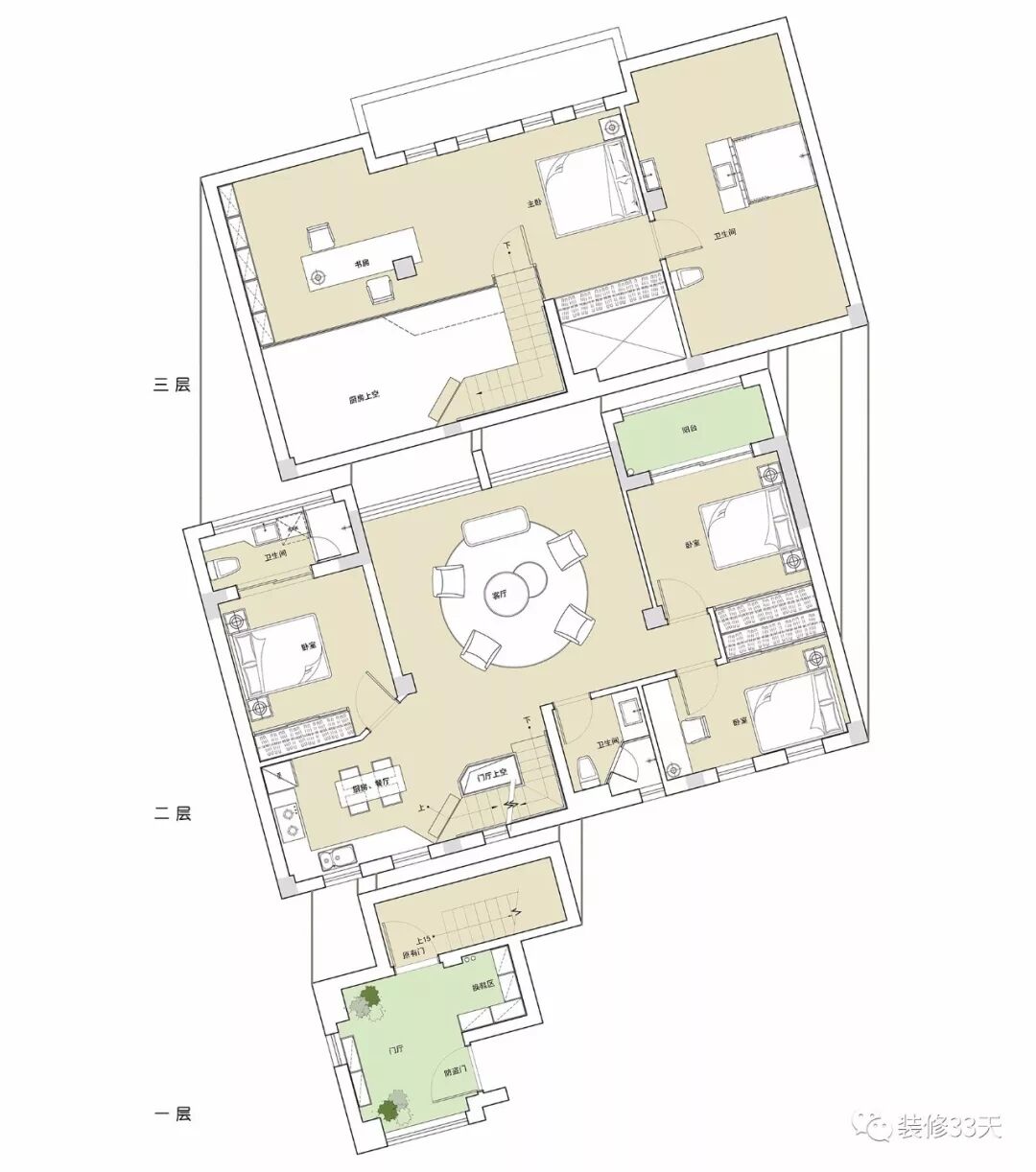
▲ 平面布置图
▲ 二层走廊,延续水泥色地坪与顶面红色铁件吊顶,并以屋主的摄影作品布置端景
▲ 客厅,大面积留白墙面与裸露的水泥横梁,搭配明管走线,体现出工业风的格调
▲ 居家空间主要用于度假,家具与窗帘等软装,较为注重性价比与功能性
▲ 靠窗木作一整条欧松板储物柜,半开放设计,原木色调与茶几呼应
▲ 空间中加入跳跃的亮色,弱化水泥基调的冰冷感
▲ 电视背景墙无过多设计,延续留白墙面搭配水泥色为基调
▲ 留出主沙发后方部分空间作办公区
▲ 从沙发背后的书桌望向餐厨区域
▲ 在厨房上空作挑空设计,整个区域采光充足,让用厨与就餐的环境更为舒适
▲ 宜家款木色餐桌椅满足一家四口的就餐需求
▲ 混凝土柜体搭配欧松板橱柜门,加铺不锈钢台面,造型呼应整室格调,且具超强实用性
▲ 悬吊式线性吊灯,增添空间层次感
▲ 俯瞰餐厨空间
▲ 餐厨区域望向走廊视角
▲ 卧室,留白空间搭配宜家款木质家具与成品窗帘
▲ 二楼卫生间水泥墙面延伸自砌台盆,搭配小巧的蓝色镜柜,空间简洁易打理
▲ 钢板楼梯,轻薄,牢固,刷成红色与扶手呼应,制造浓烈抢眼的视觉体验
▲ 三楼入口
▲ 将三楼隔间打造成私密阅读一角,水泥墙面,软木地板,一张红色懒人沙发点缀
▲ 卫生间,墙面,柜面,台面均为现浇,采用木结构制模,浇筑混凝土制成
设计 | 缤视智造设计(上海)
微信:hydedesign
后台回复「缤视」可以看更多作品
媒体转载请注明装修33天并保留设计师联系方式
欢迎业主、设计师、装修公司免费投稿照片
装修33天商务合作微信:king194316
松爷店铺掌柜微信:yejia1701
缤视智造设计其他作品推荐,点击下图查看32平现代简约Loft 阳光单身公寓
实用装修指南
装修33天 🏡 实用装修指南
喜欢我们的文章就随手转发到您朋友圈吧