点上方蓝字可关注 微信号:装修33天
▲ 建筑面积220平,造价40万(不含家电),入户靠墙设计半高矮柜作鞋柜使用,上方可随手置物
▲ 一层平面布置图
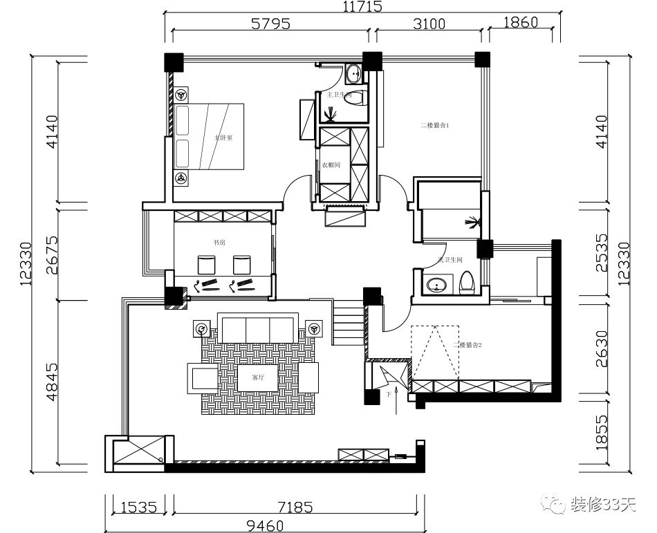
▲ 二层平面布置图
▲ 客厅用冷色调搭配原木色家具,低纯度色系干净利落
▲ 木质地板搭配层次感吊顶,装三盏日式吊灯,选择渐变蓝色地毯弥补小体积茶几带来的视觉空白
▲ 木框架与麻布灰打造的沙发,简单舒适
▲ 客厅空间摒弃传统电视,在沙发边柜上放置投影仪,扩大视觉感官
▲ 木质楼梯清新简洁,整个客厅没有过于繁复的装饰,秉承日式风的简约实用,楼梯右下方错层布置餐厨区域
▲ 餐厅与厨房一体,打造开放式的烹饪与就餐空间,整体明亮宽敞
▲ 原木色餐桌椅搭配长凳,自然的肌理与橱柜层板与吊柜呼应,白色瓷砖加黑色美缝,增加文艺清新范
▲ 布偶猫舍整体空间开阔明亮,布置优雅清新,具有超强的几何立体感,用玻璃将猫舍与花园分隔,增加采光的同时确保布偶猫的健康
▲ 木色栏栅是移门增添轻盈的日式元素
▲ 走廊端景,原木色让室内格调统一
▲ 书房延续白色点缀原木基调,采光窗与玻璃隔墙让空间采光充足,加长写字台与橱窗式书柜,功能实用,一旁设置喵星人的休憩之处,温暖贴心
▲ 卧室采用白色与点麦色搭配,简单的色彩能让人迅速安静下来,加入原木家具,显示日式风的沉静与优雅
▲ 卫生间地面与墙面通铺灰色调瓷砖,搭配大面积木色背景与家具,简洁不失温度
设计 | 成都宏福樘装饰
微信:hft87445879 电话:028-87445879
后台回复「宏福樘」可以看更多作品
媒体转载请注明装修33天并保留设计师联系方式
欢迎业主、设计师、装修公司免费投稿照片
装修33天商务合作微信:king194316
松爷店铺掌柜微信:yejia1701
成都宏福樘装饰其他作品推荐,点击下图查看130平温馨美式三居 借门厅扩餐厅
实用装修指南
装修33天 🏡 实用装修指南
喜欢我们的文章就随手转发到您朋友圈吧