点上方蓝字可关注 微信号:装修33天
▲ 建筑面积170平,是一套位于上海松江的小联排,设计师为身兼画家与纹身师的业主打造不同寻常的艺术宅
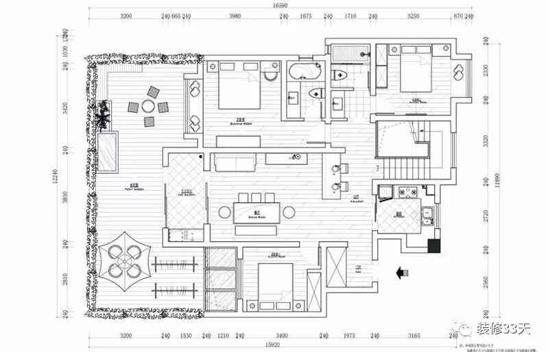
▲ 一层平面布置图
▲ 地下一层布置图
▲ 地下二层布置图
▲ 客厅布置结合屋主生活习惯,摒弃传统客厅制式,规划出小厅,吧台,餐厅
▲ 简单的顶面通过木线条勾勒,留白墙面搭配木色家具,点缀皮质元素与复古摆件
▲ 一层保留餐厅机能,大大的木色餐桌满足一家四口就餐与亲子活动所需的场域
▲ 背景墙采用业主作品点缀,红色单椅提亮空间
▲ 餐厅望向厨房动线
▲ 卧室简简单单,最基础的大白墙搭配原木家具
▲ 每一幅装饰画都是业主亲手绘制,就连画框也是亲手制作
▲ 床尾的木质多斗柜与挂衣功能的长凳,与其他木质家具呼应并增添卧室机能
▲ 室外休闲大花园
▲ 通往地下一层的楼梯,木质与铁件结合点缀装饰画,给人一种身在画廊的感觉
▲ 将客厅设置在地下一层,采用老门板作电视层板,搭配皮质与木质家具,打造复古气息的休闲场域
▲ 地下一层除了客厅,还设置了影音室,纹身室,衣帽间,由于业主隐私要求就不一一展示
▲ 地下一层通往地下二层
▲ 6米高大书柜结合木质铁件楼梯,一边上下楼一边随手翻翻书
▲ 地下二层,留出更多活动空间给小朋友,靠墙只做一排卡座,可供休息与收纳玩具
▲ 小男孩的音乐小天地,因为声音比较大,所以将其设置在地下二层
▲ 自砌洗手台,铺贴花砖,兼具颜值与个性并与整室个性风格呼应
设计 | 犀宅原创装饰(上海)
微信:18501680515
后台回复「犀宅」可以看更多作品
媒体转载请注明装修33天并保留设计师联系方式
欢迎业主、设计师、装修公司免费投稿照片
装修33天商务合作微信:king194316
松爷店铺掌柜微信:yejia1701
犀宅原创装饰其他作品推荐,点击下图查看170平舒适混搭三居 合理布局细节出品质
实用装修指南
装修33天 🏡 实用装修指南
喜欢我们的文章就随手转发到您朋友圈吧