点上方蓝字可关注 微信号:装修33天
▲ 建筑面积76平,总造价23万,入户分体鞋柜,中部留空可随手置物,右边亮黄色吊灯给人温馨的归家感
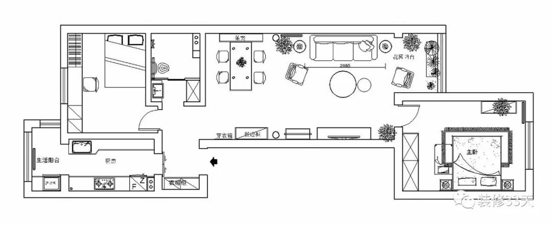
▲ 平面布置图
▲ 进门后是厨房,两扇老式格子木门,平时合上就可把厨房隐藏起来
▲ 厨房通铺白色墙砖,搭配木纹橱柜门让小空间变得干净轻盈
▲ 走廊端景,蓝色扎染布帘,遮挡卫生间入口,美观的同时化解尴尬
▲ 右转过来就是客餐厅区域,互通式的空间,动线顺畅
▲ 餐厅地面通铺水泥砖,老木板吊顶增加自然怀旧,搭配餐桌椅与餐边布景,雅致不乏时尚感
▲ 餐厅另一边放置一张玄关柜,搭配木框墙镜,一边的石墩+木柱将客餐厅自然作分割
▲ 客厅地面通铺老式青砖,与老木元素搭配出岁月沉淀后的斑驳感
▲ 地面加铺一张大地毯,弱化青砖带来的冰冷质感,搭配一组轻巧圆形茶几组,空间可灵活变化
▲ 油蜡皮与墨绿色布混搭出复古款沙发,搭配多色靠枕点缀活泼调性
▲ 摒弃传统沙发背景,用手工编织屏风装饰出别致风景
▲ 男孩房简约干净,窗沿下方木作写字台,并在左右两侧延伸两组收纳柜
▲ 主卧留白墙面搭配原木家具,环保自然,一瓶鲜切花增加浪漫清新氛围,拼色窗帘提亮空间
▲ 床尾的多斗柜搭配上方墙面的精致壁灯,提升卧室格调的同时兼具实用性
▲ 卫生间干湿分离,提高使用效率
设计 | 五明原创设计(北京)
微信:136503506
后台回复「五明」可以看更多作品
媒体转载请注明装修33天并保留设计师联系方式
欢迎业主、设计师、装修公司免费投稿照片
装修33天商务合作微信:king194316
松爷店铺掌柜微信:yejia1701
五明原创设计其他作品推荐,点击下图查看137平个性混搭婚房 有点情趣又带着禅意
实用装修指南
装修33天 🏡 实用装修指南
喜欢我们的文章就随手转发到您朋友圈吧