点上方蓝字可关注 微信号:装修33天
▲ 测量面积130平,总造价60万,入户以木皮背景与成品玄关柜作端景
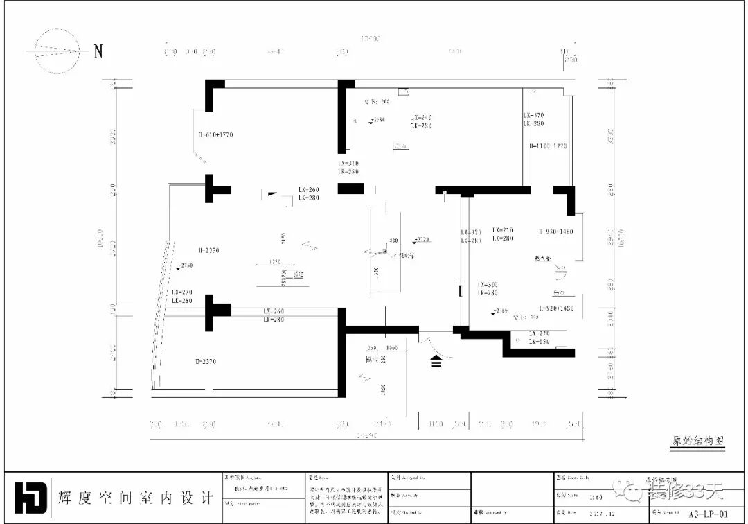
▲ 原始结构图
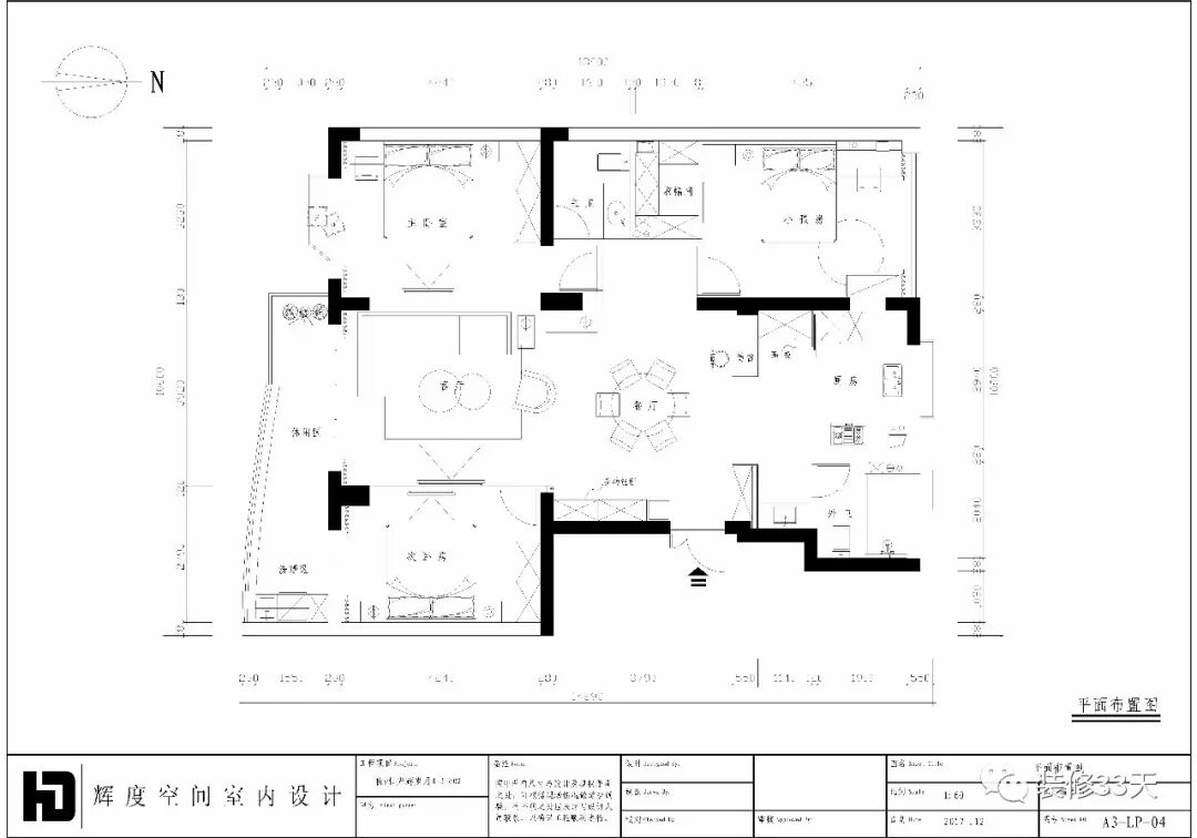
▲ 平面布置图
▲ 进门右侧为鞋柜,上方有一根梁,巧妙结合厨房门口的小吧台,用大理石包裹形成一个整体
▲ 餐厨相邻,通过地面铺贴不同的材质,并与石材垭口与吧台作场域分隔
▲ 厨房门采用三扇移门,不用时推到一边,厨房就变成开放式,浅色调让厨房变得整洁明亮
▲ 餐厅背后的走廊背景采用伯格鲁木雕代替装饰画,古朴自然,并通过灯光赋予层次
▲ 客厅整体通过简单的色彩搭配,打造出稳重又耐看居家色调
▲ 灰色布艺沙发点缀跳色与经典图案的抱枕,一幅抽象画以不对称的形式装饰背景
▲ 胡桃木纹理家具,木饰面上墙,搭配绿植摆件,每个空间的留白都弥漫着一种温暖的感觉
▲ 客厅望向餐厨场域,极简的顶面延伸视觉空间
▲ 客卫干湿分区,提高使用效率
▲ 儿童房,留白墙面与半高木饰面作背景,打通阳台增设阅读休闲区
▲ 次卧,浅色硬装空间,搭配深色家具,床头两侧采用不同的灯饰点缀
▲ 线条感的装饰画与床品呼应,白色移门衣柜加入木色线条让立面不显呆板
▲ 主卧延续留白的空间为基调,搭配深色家具,黑白灰与木色营造简洁的舒眠氛围
▲ 床背景两侧通过装饰画与悬挂吊灯点缀出不对称的美
▲ 衣柜门片与墙面线条呼应,呈现简洁利落的视觉感
▲ 卫生间整体通铺仿石纹瓷砖,木质成品浴室柜与书柜成套,满足卫生间收纳与洗漱需求
设计 | 辉度空间设计(杭州)
微信:18072920063
后台回复「辉度」可以看更多作品
媒体转载请注明装修33天并保留设计师联系方式
欢迎业主、设计师、装修公司免费投稿照片
装修33天商务合作微信:king194316
松爷店铺掌柜微信:yejia1702
辉度空间设计其他作品推荐,点击下图查看89平现代简约三室,用小空间作禅意茶室
实用装修指南
装修33天 🏡 实用装修指南
喜欢我们的文章就随手转发到您朋友圈吧