点上方蓝字可关注 微信号:装修33天
▲ 建筑面积53平,使用面积48平,总造价13万,户型中打掉能打的墙,设计一个完全开放的空间
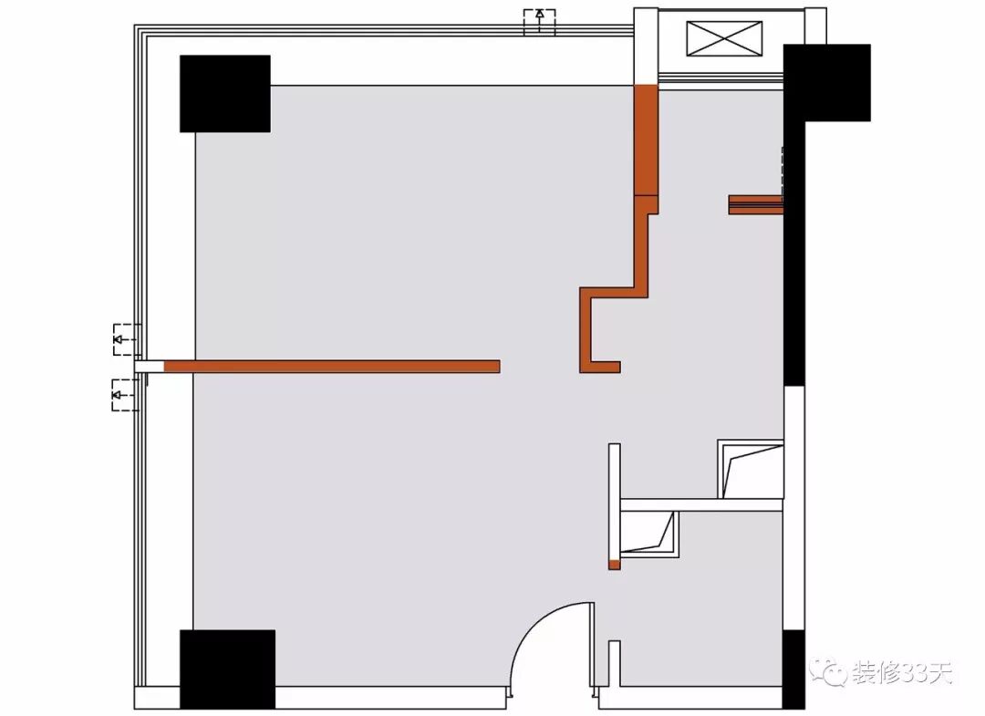
▲ 平面结构图
▲ 平面布置图
▲ 入户左侧规划为客餐厅合一的空间,不足50平,却尽显开阔
▲ 客餐厅地面通铺仿大理石瓷砖,延伸至局部墙面
▲ 一组悬空系统柜,结合储物与展示功能,黑白色调增添层次
▲ 将冰冷的飘窗台打造成客厅主沙发,坐垫软硬亦刚好,还可以躺下来,享受这份慵懒
▲ 餐桌作为起居室与睡眠空间的串联,沐浴着阳光与星光,都是用餐最好的调料
▲ 通过玻璃间隔分明,一面是厨房舞台,一面是可以安睡的卧房
▲ 白色的纯粹空间,拉下幕布,是两人的电影时光,投影出静止的回忆,推开门,是私密的浴室
▲ 客餐厅与卧室一览图,尽情享受开放空间的自由
▲ 卧室与客厅通过飘窗卧榻与小吧台,起空间连接与隔断作用
▲ 两面全窗,完全被洒进的阳光俘获,按季节心情懒散的微微蜷曲,这是生活上的浪漫奢侈
▲ 刷黑的大立柱与灰白空间搭配,倚靠着,阅读着一本又一本的书,仿佛游历了世界
▲ 黑白灰的简约就寝空间,打造舒适惬意的二人世界
▲ 断舍离的衣橱,一幅纯白垂帘,在午后的风中轻微摆动,拉合上垂帘,层层叠叠,简洁利落
▲ 淋浴区,仿大理石瓷砖搭配黑色花洒,风格与整室协调呼应
设计 | 何雨晴(成都)
微信:shandee
电话:13730637491
后台回复「何雨晴」可以看更多作品
媒体转载请注明装修33天并保留设计师联系方式
欢迎业主、设计师、装修公司免费投稿照片
装修33天商务合作微信:king194316
松爷店铺掌柜微信:yejia1702
何雨晴其他作品推荐,点击下图查看120平现代高颜值公寓 打掉99%墙四居改一居
实用装修指南
装修33天 🏡 实用装修指南
喜欢我们的文章就随手转发到您朋友圈吧