点上方蓝字可关注 微信号:装修33天
▲ 本案例为异地项目,使用面积106平,总造价65万,入户炫酷吊顶给人视觉指引,延伸至一组悬空四门柜
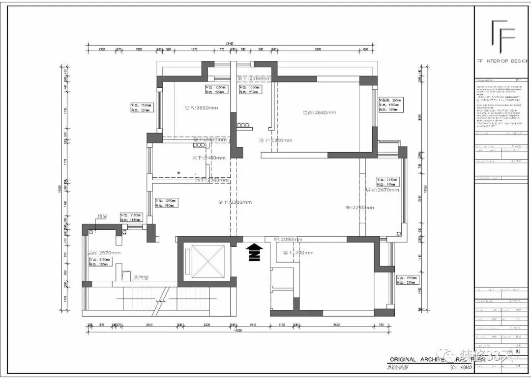
▲ 平面结构图
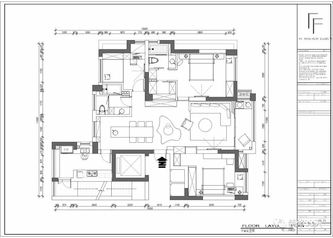
▲ 平面布置图
▲ 黑白灰基调的客厅往阳台外推50公分,使得整个空间看起来更加开阔
▲ 留白背景以一条黑色不锈钢感应触碰灯为装饰,包豪斯的沙发,体感舒适
▲ 黑白色储物电视柜,将电视嵌入柜体内,底部点缀木元素收纳,一旁卧室门片与背景形成一体
▲ 餐厅,中岛连接餐桌,黑白对比的空间加入木色展示收纳柜体,深灰肌理墙让空间更赋质感与个性
▲ 餐桌餐椅、吊灯、以及门片以深色呼应,凸显空间的层次与设计感
▲ 中岛吧台也是阅读休闲的好地方
▲ 厨房整体通铺水泥灰哑光砖,顶面点光源与灯带的设计简洁又高级,安装一组凉霸让你做饭不怕热
▲ 客卫利用书房部分面积作为淋浴房,灰白主调加入黑色线条与灯带,让视觉更为饱和
▲ 儿童房,结合飘窗位置打造榻榻米,嵌入式柜体连接70公分的写字桌
▲ 次卧,纯白木板不锈钢包边作悬浮背景,搭配灰色床背,黑边框飘窗连接木色写字台
▲ 次卧床尾打造开放式书柜,并加设一张化妆台
▲ 主卧整体延续极简风格,干净的顶面走一圈灯带,白色背景以黑色线条与悬挂吊灯作装饰
▲ 黑白搭配的主卧走廊,通向衣帽间与主卫
▲ 主卫,采用大面积的镜子,收纳出光的设计让空间开阔有层次
设计 | FF INTERIOR DESIGN 费崎峰(上海)
微信:18601793539
后台回复「费崎峰」可以看更多作品
媒体转载请注明装修33天并保留设计师联系方式
欢迎业主、设计师、装修公司免费投稿照片
装修33天商务合作微信:king194316
松爷店铺掌柜微信:yejia1702
费崎峰其他作品推荐,点击下图查看出租房装修比我家好几倍!啥家庭啊?家里有矿啊?
实用装修指南
装修33天 🏡 实用装修指南
喜欢我们的文章就随手转发到您朋友圈吧