点上方蓝字可关注 微信号:装修33天
▲ 建筑面积140平,总造价45万,整个空间运用简洁的线条和纯粹的色彩,相互搭配,带出一种细腻干净的质感
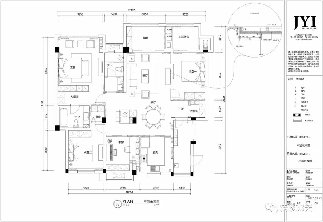
▲ 平面布置图
▲ 入户右侧设计衣帽间取代传统的鞋柜式收纳,提供更多的储物需求
▲ 客厅主调灰搭配不同质地的一抹蓝,营造出客厅空间低调又奢华,优雅又不失时尚的风格
▲ 焦糖棕皮质单椅与自然的木质色调使居室充满休闲氛围
▲ 大理石电视背景墙,金属边修饰,右侧隐藏次卧门片,与木质墙面浑然一体
▲ 在阳台铺设户外防腐木,木色延伸至卡座背景,蓝灰色卡座+软垫,完美打造休闲一隅
▲ 现代港式餐厅,简约中透露出对细节的追求,嵌入式柜体收纳大型厨电,解放厨房空间
▲ 厚实的实木桌椅,金属骨架的树枝灯,简单外表折射出一种内敛的贵族气质
▲ 木作收纳系统柜包裹承重柱,后方连接出吧台设计,丝绒+黄铜的搭配,弥漫出一种高级感
▲ 木质与灰白格调的厨房,大面积柜体提供充足收纳,青灰色台面更加简洁耐脏
▲ 客卫干湿分区,灰、白、木色调,墙面采用白色大理石纹瓷砖,更具时尚感
▲ 次卧,木地板上墙,以人字铺贴,极具设计感,木质温润与一抹暖橙,能提升整个空间的温馨感
▲ 主卧,木质调与蓝色调的搭配简单自然,淡蓝色的窗帘平添几分温柔
▲ 采用蓝色硬包结合木皮造型,点缀一盏 IC Lights 恒星系列吊灯,金属元素增加高级感与精致度
▲ 主卫延续灰、白、木基调,沉稳大气,采用铺贴木纹砖延伸至墙面划分空间,增加层次感
设计 | 吉友洪设计工作室(无锡)
微信:18112397118 QQ:491639913
公众号:JYHstudio
后台回复「吉友洪」可以看更多作品
媒体转载请注明装修33天并保留设计师联系方式
欢迎业主、设计师、装修公司免费投稿照片
装修33天商务合作微信:king194316
松爷店铺掌柜微信:yejia1702
吉友洪设计工作室其他作品推荐,点击下图查看130平美式精致宅 高学历爱上高颜值
实用装修指南
装修33天 🏡 实用装修指南
喜欢我们的文章就随手转发到您朋友圈吧