点上方蓝字可关注 微信号:装修33天
▲ 建筑面积140平,整体以黑白灰低彩度基调点缀木色,石纹、墙纸等材质彰显质感实用的居家环境
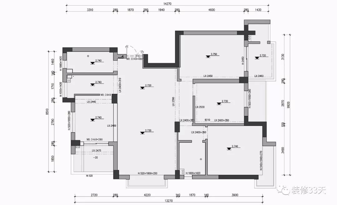
▲ 平面结构图
▲ 平面布置图
▲ 客厅地面通铺灰白纹理瓷砖,极简顶面用点光源取代主灯
▲ 浅灰色粗布沙发,搭配不规则石纹边几,材质的碰撞体现居家质感
▲ 折角沙发结合木皮包裹的飘窗,作为客厅的休闲场域,客人多的时候也可满足所需座位
▲ 飘窗一角放置一张贝壳椅,木质与皮纹结合,个性舒适
▲ 石纹电视背景墙采用不锈钢收边,两边延伸拉槽木饰面,并隐藏卧室门片
▲ 餐厅与客厅互通,深色现代款餐桌椅搭配北欧元素吊灯,与左边厨房动线相邻
▲ 在餐厅动线的侧墙立面,凹槽面中嵌入不锈钢展示竖架
▲ 木色陈列系统柜作餐边收纳,同时兼作木元素背景,柔化黑白灰的硬冷
▲ 餐厅望向客厅视角
▲ 客卫,木纹瓷砖铺贴出纹理感墙面,设计感与实用性兼具的台盆与镜面,加入灯带增加层次
▲ 书房,深灰色墙布搭配木作转角写字台,铁件置物板与装饰画点缀墙面
▲ 沿着转角写字台的另一面墙也得到充分利用,对应的深色墙布搭配木色展示层板
▲ 儿童房,设计地台式床铺,半高木纹护墙作床靠,并延伸架空写字台
▲ 木纹背景结合定制墙纸,充满意境视野
▲ 儿童房另一面墙铺贴细格子墙纸,点缀装饰画与刻度尺,方便随时为孩子测量身高
▲ 主卧卡其色硬包结合浅灰褐色皮质大床,粉色床品给人柔软浪漫的视觉感受
▲ 现代风格的家具,搭配精致特别的灯饰,提高空间品位
▲ 主卫整体风格延续客卫格调,在浴缸底部加入隐形光源增加层次与高级感
设计 | 力设计(杭州200公里以内)
微信:17858603257
后台回复「力设计」可以看更多作品
媒体转载请注明装修33天并保留设计师联系方式
欢迎业主、设计师、装修公司免费投稿照片
装修33天商务合作微信:king194316
松爷店铺掌柜微信:yejia1702
力设计其他作品推荐,点击下图查看130平现代简约三居 冷灰色调配高雅软装
实用装修指南
装修33天 🏡 实用装修指南
喜欢我们的文章就随手转发到您朋友圈吧