点上方蓝字可关注 微信号:装修33天
视频
▲ 建筑面积254平,造价100万(不含家电),入户玄关水泥色基调搭配线条感收纳
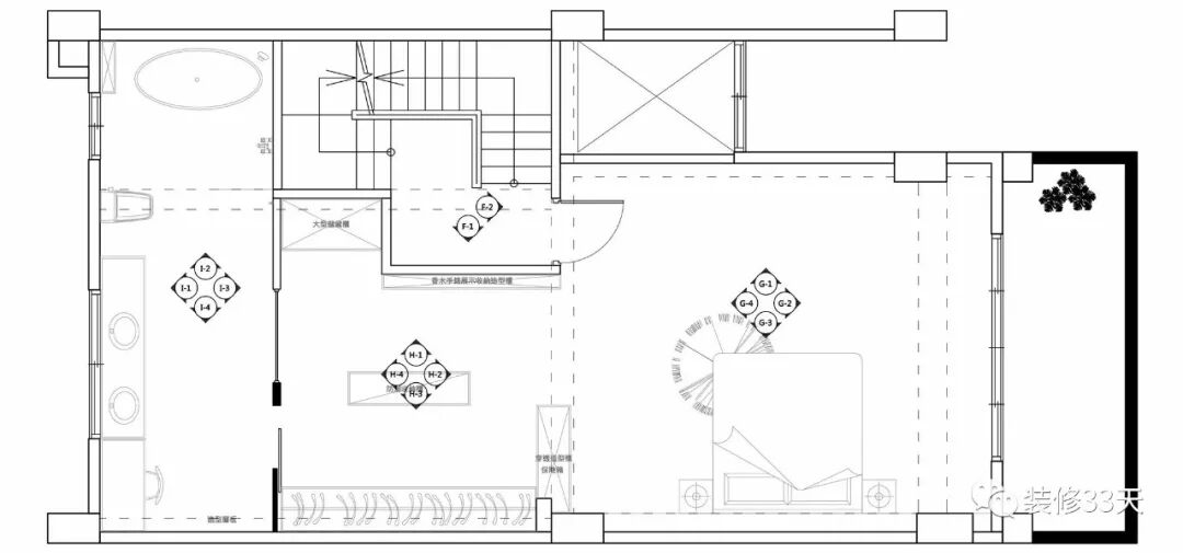
▲ 一层平面布置图
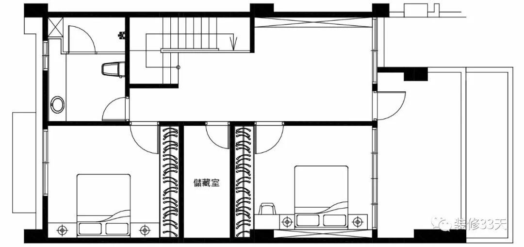
▲ 二层平面布置图
▲ 三层平面布置图
▲ 透过大面积玻璃望向室内空间
▲ 客厅,木地面搭配留白沙发背景,极简顶面安装轨道射灯作照明
▲ 六边型地砖从玄关延伸至客厅电视背景区,采用外墙水泥板铺贴质感电视背景墙
▲ 客餐厅互通的模式,通过背景墙面与家具作场域分割
▲ 餐厅连接中岛台,木质钢架展示架作餐厅背景
▲ 中岛采用石质外包,内部设计成木质酒架与杯架
▲ 透过玻璃看向餐厅室内空间
▲ 厨房延续玄关的六边型地砖,墙面通过一条黑色腰线作修饰,木色与白色橱柜门区分空间层次
▲ 楼梯,水泥的灰白色与细腻,对光影拥有极高的感应力
▲ 工业风粗犷的铁件扶手,带有原始风味和现代感
▲ 客卫,黑白主调的洗漱空间以一面立体视觉背景墙为主题
▲ 次卧,灰色硬包背景搭配原木边桌,可旋转阅读灯简单实用
▲ 次卧床侧设计置顶衣柜,并规划出木色写字台
▲ 主卧,一体式灰色床背景通过对称线性吊灯作装饰,暖色光晕营造温馨的就寝氛围
▲ 留白墙面内嵌一面靛蓝色电视背景墙,制造深邃个性的空间视觉
▲ 二楼整个空间规划为套间主卧,衣帽间设计储物柜,梳妆台,收纳中岛,一面玻璃隔墙与主卫视觉相通
▲ 主卫,浅色六边型地砖搭配水泥粉光墙面,通过一面清玻干湿分区,加入一面木色背景增添自然暖意
设计 | WID建筑室内设计(台湾)
微信:fish112611
媒体转载请注明装修33天并保留设计师联系方式
欢迎业主、设计师、装修公司免费投稿照片
装修33天商务合作微信:king194316
松爷店铺掌柜微信:yejia1702
实用装修指南
装修33天 🏡 实用装修指南
喜欢我们的文章就随手转发到您朋友圈吧