点上方蓝字可关注 微信号:装修33天
▲ 建筑面积89平,半包8万,入门玄关处,浅棕色的玄关柜以及穿衣镜简单地修饰,一定程度上解决收纳问题
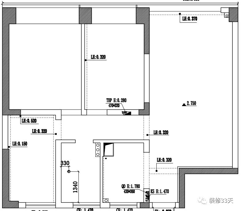
▲ 平面结构图
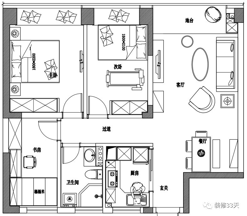
▲ 平面布置图
▲ 客厅整体摈弃传统北欧的黑白灰,大胆使用最新流行色,让人眼前一亮
▲ 家具与软装采用孔雀绿+宝石蓝,点缀绿植与原木,营造自然清新的氛围
▲ 浅灰色沙发放两个撞色靠枕,与背景墙的挂画一起制造出复古时尚的格调
▲ 纯色电视机背景墙与沙发背景呼应,安装投影取代电视机
▲ 一盏垂挂的吊灯和大小形态不一的绿植,自成风景
▲ 阳台规划成木纹地台结合局部收纳,搭配简单的家具和蓝色窗帘,打造阳光下午茶的完美场所
▲ 客餐厅互通,并以功能性家具规划出机能场域
▲ 餐厅,浅棕色木质餐桌椅,蓝灰色背景墙点缀多边形绿植挂画,营造一股原始的自然气息
▲ 与餐桌色调一致的餐边柜,摆上一幅装饰画,满足储物与展示功能
▲ 餐厅望向客厅视角,落地窗提供公领域明亮的采光
▲ 简约一体化的厨房,通过灰色和白色以及原木色打造简约北欧风的料理空间
▲ 过道空间使用灰色和白色,左边墙面以孔雀绿为底色的涂鸦墙,个性十足
▲ 次卧,硬装简洁干净,孔雀绿和宝石蓝的软装作装饰,呼应整室的主调性
▲ 主卧,木色地板搭配一面宝石蓝背景,通过白色壁灯、布艺饰品和装饰画点缀
▲ 床的金属元素和孔雀绿床品,看似不经意的搭配,却带来别具一格的视觉效果
设计 | 恒彩设计(杭州)
微信:18968018121
后台回复「恒彩」可以看更多作品
媒体转载请注明装修33天并保留设计师联系方式
欢迎业主、设计师、装修公司免费投稿照片
装修33天商务合作微信:king194316
松爷店铺掌柜微信:yejia1702
恒彩设计其他作品推荐,点击下图查看122平现代北欧三室 简化设计注重功能
实用装修指南
装修33天 🏡 实用装修指南
喜欢我们的文章就随手转发到您朋友圈吧