点上方蓝字可关注 微信号:装修33天
▲ 建筑面积90平,总造价24万,经历一年时间为一对年轻小夫妻打造简洁实用的居家空间
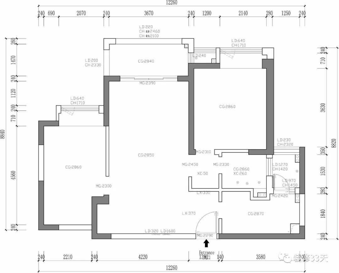
▲ 平面结构图
▲ 平面布置图
▲ 分体玄关鞋柜一旁放置一个木色镂空装饰柜,半隐半透,缓冲视线,也保障入户采光和通透性
▲ 客厅地面通铺水泥灰瓷砖,搭配白色、米色、原木色的家具,非常清新舒适
▲ 沙发一边采用造型落地灯与绿植点缀
▲ 黄色系的单人沙发,让整个空间显得清爽干净又不失活泼
▲ L型储物柜兼具电视柜功能,白色柜体搭配黑色线性拉手,木色置物板清新淡雅
▲ 电视柜锐角采用透明防撞角防止磕碰
▲ 客餐厅互通,利用过道与功能性家具规划场域
▲ 餐厅墙边整排餐边柜最大可能利用空间,花砖搭配木皮成为点睛之笔
▲ 入户玄关柜一侧即为厨房入口
▲ 简约一体化的厨房,浅米黄色的墙砖搭配白色橱柜,使原本局促的空间显得开阔明亮
▲ 次卧,整体以灰色为基调,用木色家具与绿植装饰画点缀空间,不杂乱,简单纯粹
▲ 主卧使用低调高贵的灰蓝色,灰度的表露让它更加高级,沉稳舒适
▲ 黑色壁灯,给床头柜留出更多空间
▲ 卫生间整体通铺水泥灰瓷砖,利用淋浴房墙面设计壁龛增添置物功能
设计 | 晓安空间设计(苏州)
微信:xn1533856927
后台回复「晓安」可以看更多作品
媒体转载请注明装修33天并保留设计师联系方式
欢迎业主、设计师、装修公司免费投稿照片
装修33天商务合作微信:king194316
松爷店铺掌柜微信:yejia1702
晓安空间设计其他作品推荐,点击下图查看140平简美四居 金色点缀四口之家
实用装修指南
装修33天 🏡 实用装修指南
喜欢我们的文章就随手转发到您朋友圈吧