点上方蓝字可关注 微信号:装修33天
▲ 案例为复式结构,建筑面积220平,入户右侧为储物间,方便收纳采购大件,左边则是到顶的鞋柜
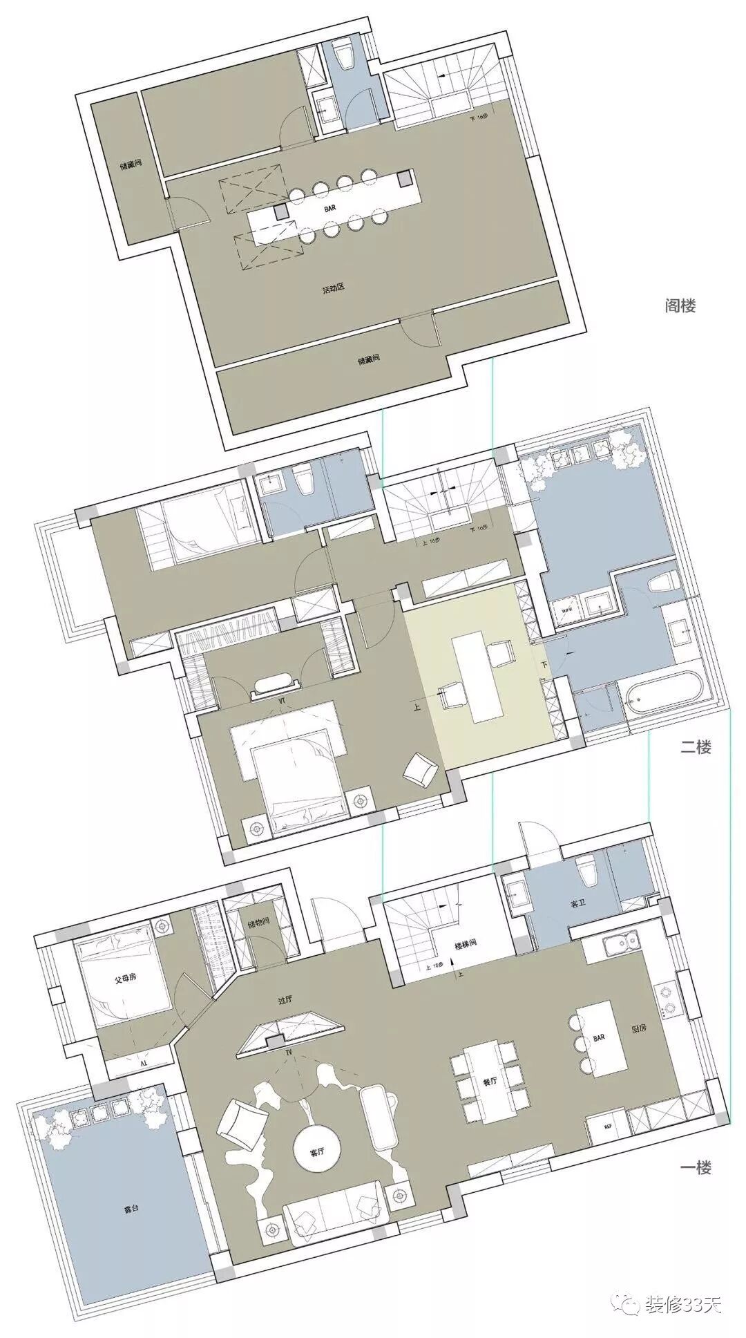
▲ 平面布置图
▲ 置顶鞋柜形成回廊空间,即是储物,又是电视墙,同时还是入户隔断,一物多用
▲ 入户过度到客厅,电视墙两边通,左面通卧室,右边入客厅,自然形成洄游动线
▲ 深色木质地板搭配极简无主灯顶面,黑色饰带立马让空间方正起来
▲ 咖色搭配卡其色的皮质沙发,形成围和式休闲空间,大理石电视背景搭配壁挂电视与影音设备
▲ 餐厅与客厅互通,空间互动良好,同时将采光引入公领域,让空间更加通透明亮
▲ 餐厅与厨房采用清玻移门,收起所有移门,将形成开放式餐厨区
▲ 现代风餐桌椅,搭配简约复古的玻璃吊灯,增加精致美感
▲ 厨房区域,默认纵向布局,为获取更大空间利用价值,在初始设计时就直接横放,并植入中岛
▲ 楼梯,木色踏步搭配同材质扶手,另一侧采用玻璃护栏,楼梯底下设计成自行车车库
▲ 书房兼具茶室机能,简单有序,方便会客与品茗
▲ 儿童房,实木高低床环保又实用,墙面规划储物机能柜体,提供收纳空间
▲ 主卧无主灯顶面点缀黑色饰带,机能家具规划睡眠与休闲区,衣帽间隐于床尾墙面,推开即用
▲ 卫生间整体采用木纹石肌理瓷片墙、地跟贴,淋浴、洗漱、泡澡等功能齐
▲ 厕用独立设置,玻璃推门,壁挂式马桶,创造私密性空间
▲ 露台花园,户外地板铺贴至半高护栏,搭配户外家具,创造休闲场域
设计 | 缤视智造设计(上海)
微信号:ispaceid
后台回复「缤视」可以看更多作品
媒体转载请注明装修33天并保留设计师联系方式
欢迎业主、设计师、装修公司免费投稿照片
装修33天商务合作微信:king194316
松爷店铺掌柜微信:yejia1702
缤视智造设计其他作品推荐,点击下图查看103平现代暖色公寓 两房爆改三居四口之家
实用装修指南
装修33天 🏡 实用装修指南
喜欢我们的文章就随手转发到您朋友圈吧