点上方蓝字可关注 微信号:装修33天
▲ 使用面积118平,总造价35万,入户以一幅装饰画作端景
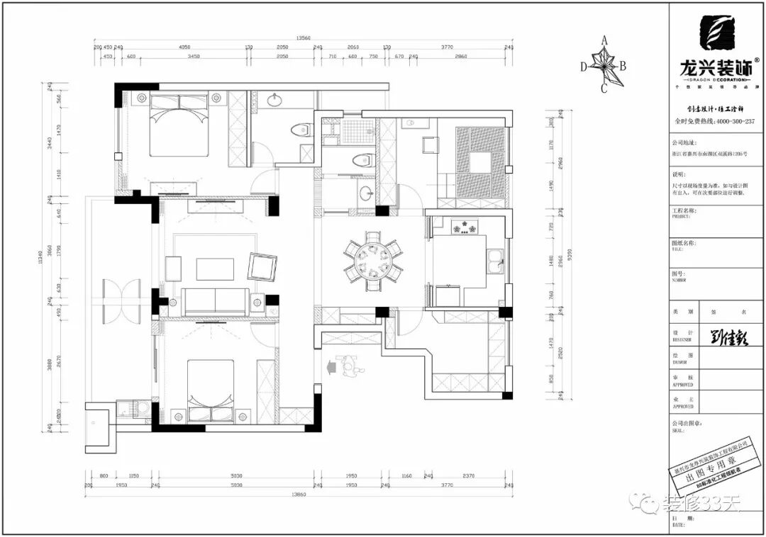
▲ 平面布置图
▲ 客厅采用复古地砖,白色护墙板与垭口一气呵成
▲ 半高护墙搭配清新绿的墙面,沙发左右两侧的弧形窗洞与置物壁龛相呼应
▲ 咖棕色皮质沙发搭配花色布艺单椅,加以黄铜色元素点缀
▲ 客厅望向餐厅,造型垭口为空间增添出不一样的线条感
▲ 将阳台用玻璃包裹成阳光休闲区
▲ 餐厅整体风格与客厅保持一致,左侧古铜色屏风隔墙遮挡外置洗手台并让就餐空间更完整
▲ 刷旧款圆形餐桌椅搭配吊扇灯,入墙式系统柜作餐边储物
▲ 厨房浅灰绿的墙砖搭配白色橱柜,留出多门冰箱的位置,形成U型储物结构
▲ 客卫干湿分区,自砌洗手台搭配粉色墙面,复古又具活力
▲ 客卫洗浴区,采用不同的复古砖铺贴,利用墙面壁龛作置物空间
▲ 榻榻米书房,兼具客房与储物功能
▲ 儿童房,象牙色柜门与奶油蓝床背景搭配出清爽视觉
▲ 主卧延续蓝色系乳胶漆墙面搭配刷旧感的家具,铜质灯饰发出暖色光晕,营造温馨氛围
▲ 主卧床头一角,复古清新
▲ 主卧同样自砌洗手台,铺贴与墙面同款瓷砖,下方储物空间布局用布帘遮挡,保持美观整洁
▲ 设计师团队与业主合照
设计 | 龙兴装饰(嘉兴)
微信:c1j2m4
电话:18702501281
后台回复「龙兴」可以看更多作品
媒体转载请注明装修33天并保留设计师联系方式
欢迎业主、设计师、装修公司免费投稿照片
装修33天商务合作微信:king194316
松爷店铺掌柜微信:yejia1702
龙兴装饰其他作品推荐,点击下图查看111平现代简约三室 纯白简灰用跳色点缀
实用装修指南
装修33天 🏡 实用装修指南
喜欢我们的文章就随手转发到您朋友圈吧