点上方蓝字可关注 微信号:装修33天
▲ 建筑总面积85平,玄关柜内嵌灯带非隐藏式设计,与具有太空感的金属色配饰营造出一种现代科幻效果
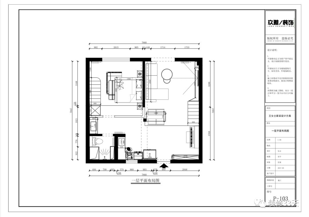
▲ 一层平面布置图
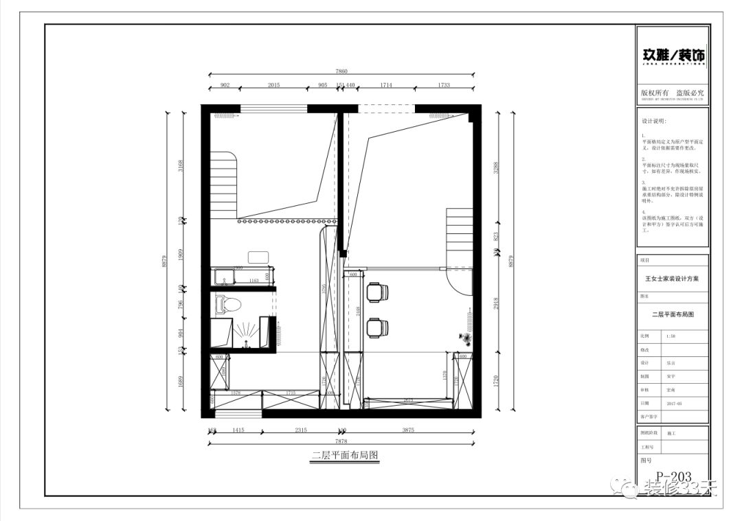
▲ 二层平面布置图
▲ 将位于户型中间的楼梯重新规划在两侧,一层空间更加通透开阔,同时楼梯位置的改变也使空间布局更加合理规整
▲ 客厅与户外花园互通,大面积玻璃窗门将自然光线与户外风景引入室内
▲ 装饰画的风格与地毯的形状相呼应,选择灰蓝色主沙发,使之从整体灰调的空间里跳出来,显得空间层次分明
▲ 搭配浅色系软装,呈现舒适雅致的公领域空间
▲ 采用白色文化砖搭配北欧绿植,打造清新一角
▲ 客餐厅互通,墙面没有做过多的装饰,顶部的射灯与真假梁相互配合,营造出的层次弱化挑高空间带来的空旷感
▲ 选择双支架摇臂灯满足客餐厅,餐桌椅搭配长凳节省空间
▲ 完全开放式的木色厨房空间,地面采用大理石六角砖与地板拼接,让防水区与非防水区完美融合
▲ 卫生间采用干湿分离,镜面后设计隐藏光源,使整个空间的光线均匀柔和,下方设置方便存储的收纳空间
▲ 二层休闲工作区域,长桌连接榻榻米与储物柜,选择舒适度较高的脚踏单体沙发,让整个空间都显露出舒适安逸的气氛
▲ 二楼眺望一楼客厅视角
▲ 主卧同样与户外花园连通,以大面积玻璃窗为隔墙,采光与景致尽收
▲ 木色与灰色层次背景点缀一幅装饰画,采用单边吊灯,一侧落地灯形式,营造花与鸟的意境,极具艺术美感
▲ 床侧没有考虑过多功能性,按业主希望设计成休闲区
▲ 合理利用楼梯下方空间,楼上选择屏风遮挡衣帽柜,优化视觉效果
▲ 改造后的主卧分为楼上的功能区,包括衣帽间、卫浴、梳妆台是一个完整的复式空间
▲ 二层洗漱台采用大单盆,左侧则作为女主人的梳妆区,浴室柜下方设计方便使用的储物空间
▲ 黑白灰色调的卫生间,采用壁挂式马桶,后方用来置物,并挤压整个卫生间区域,使整个空间显得更大
设计 | 玖雅设计(北京)
微信:18611911806
后台回复「玖雅」可以看更多作品
媒体转载请注明装修33天并保留设计师联系方式
欢迎业主、设计师、装修公司免费投稿照片
装修33天商务合作微信:king194316
松爷店铺掌柜微信:yejia1701
玖雅设计其他作品推荐,点击下图查看半包4万5装47平粉白灰原木北欧风
实用装修指南
装修33天 🏡 实用装修指南
喜欢我们的文章就随手转发到您朋友圈吧