点上方蓝字可关注 微信号:装修33天
▲ 使用面积55平,总造价18万,小空间将玄关,就餐和起居室作一体化设计
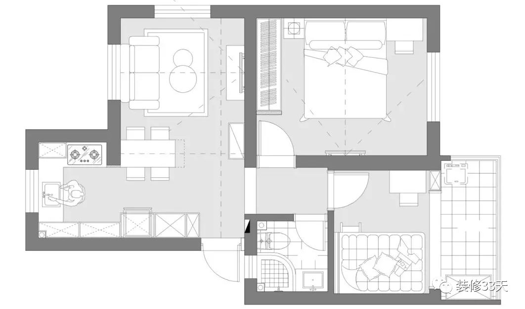
▲ 平面布置图
▲ 餐厅采用了大量的莫兰迪色,让空间更具有温度,但又避免强烈的色彩对冲
▲ 餐厅后方即是半开放式厨房
▲ 厨房,灰调地砖搭配蓝灰色小方砖,白色橱柜门简洁干净
▲ 客餐区,泡泡形玻璃球吊灯与空间融合一体,满足光影需求的同时,不会增加视觉上的阻碍感
▲ 浅色布艺沙发搭配同色系软装温情并且舒适
▲ 木色地板与木质家具相互呼应,为空间增添温馨自然色彩
▲ 烟灰蓝墙面作电视背景墙,采用错落实木电视柜与挂钟修饰
▲ 阳台打造成实用的洗晒区,加高地台处放置洗衣机
▲ 客厅望向餐厅与门厅处
▲ 过道,烟灰蓝搭配明度很浅的灰,总是能表现出纯粹的空间
▲ 儿童房整体延续公领域的配色,蓝灰色系加入木色的温馨
▲ 主卧一面深邃蓝色背景,给与空间平静和坦然,搭配墙面挂件,让原本沉闷的背景充满生命力
▲ 实木大床搭配简单的一款小书桌,取代床头柜使用并兼具梳妆台
▲ 一组白色置顶大衣柜,采用折叠的开合方式
▲ 卫生间,花砖地面配白色墙砖,预埋挡水条用浴帘取代玻璃淋浴房
设计 | 凡尘壹品设计(杭州)
微信:13857193935
后台回复「凡尘」可以看更多作品
媒体转载请注明装修33天并保留设计师联系方式
欢迎业主、设计师、装修公司免费投稿照片
装修33天商务合作微信:king194316
松爷店铺掌柜微信:yejia1702
凡尘壹品设计其他作品推荐,点击下图查看89平轻奢混搭三室 精装修软装改造美宅
实用装修指南
装修33天 🏡 实用装修指南
喜欢我们的文章就随手转发到您朋友圈吧