点上方蓝字可关注 微信号:装修33天
▲ 建筑面积236平,改造后套内面积增至400平(360平+花园40平),入户整排置顶鞋柜满足收纳需求
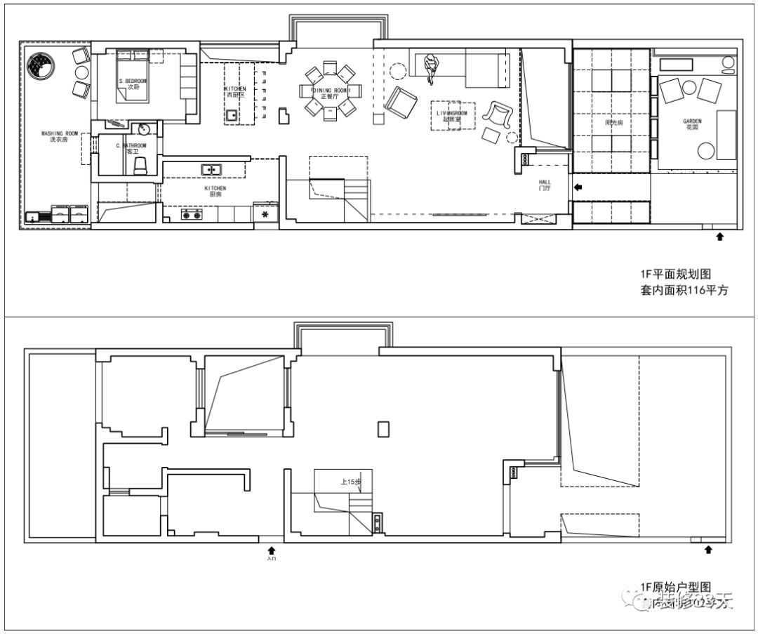
▲ 一层平面布置图
▲ 二层平面布置图
▲ 负一层平面布置图
▲ 客厅沙发背景墙浅灰色墙面石材,深灰色质感沙发搭配暖色单人沙发和人字型拼接地板
▲ 客厅沙发一隅,一个安详宁静的下午,一杯咖啡,一本书
▲ 客厅以浅色为基调,嵌入黑色多功能整体电视柜,增加客厅的收纳功能
▲ 客厅望向餐厅,利用原有柱子做了矮隔断处理,可以收纳储藏,同时把餐厅和客厅功能区域分开
▲ 餐厅分中西区域处理,中餐厅利用圆形餐桌椅,整体以木质元素为主搭配精致的吊灯,窗外美景映入眼帘,东方的韵味油然而生
▲ 本来无西餐的空间,把原有镂空的庭院做了搭建,做出来西餐的区域
▲ 厨房,墙面采用灰色纹理石材,两排整体橱柜,收纳大型厨电,让空间整洁,明亮
▲ 玻璃围栏扶手楼梯,打破传统楼梯的笨重感,灯槽设计成为空间亮点
▲ 二楼客厅在原有卧室墙体的外侧做一面简约嵌入式电视背景板,搭配人字型拼接地板与浅灰色沙发
▲ 沙发一侧放置办公场域,整排木饰面墙设计隐形门,进去是主卧和次卧的整个空间区域
▲ 主卧室人字铺木地板搭配大面积落地窗,灰色窗帘与简约落地灯,深紫色的单人沙发打造休闲一角
▲ U型的衣帽间可以供主卧和次卧同时使用,衣帽间的外观采用线条纹理空间感更加利落美观
▲ 主卧床头一角
▲ 主卧床尾设置斗柜与挂衣架
▲ 主卫,干湿分区,单独设立浴缸,整排台盆柜和镜柜提供充足的储藏收纳空间
▲ 地下室楼梯,一字型拼接地板,不同的区域采用不同的材质划分
▲ 影音室,沙发背景墙顶作镂空处理,引入自然光线,墙面的软包处理,达到更好的隔音效果
▲ 大面积黑色绒布包边的幕布,看电影时有了强大的视觉感
▲ 台球室,新搭建的造型墙,一是作为承重墙使用,二是做卡座沙发作为休闲休息空间使用
▲ 客卧墙面作透光处理,打造简约舒适的睡眠环境
▲ 休闲的户外花园
设计 | 7kk设计(上海)
微信:15221706435
后台回复「7kk」可以看更多作品
媒体转载请注明装修33天并保留设计师联系方式
欢迎业主、设计师、装修公司免费投稿照片
装修33天商务合作微信:king194316
松爷店铺掌柜微信:yejia1702
7kk设计其他作品推荐,点击下图查看简约美式复式大宅 艺术吊顶延伸空间感
实用装修指南
装修33天 🏡 实用装修指南
喜欢我们的文章就随手转发到您朋友圈吧