点上方蓝字可关注 微信号:装修33天
▲ 建筑面积89平,进门设计鞋帽柜,换鞋凳,衣帽钩,仪容镜等满足各种入户需求
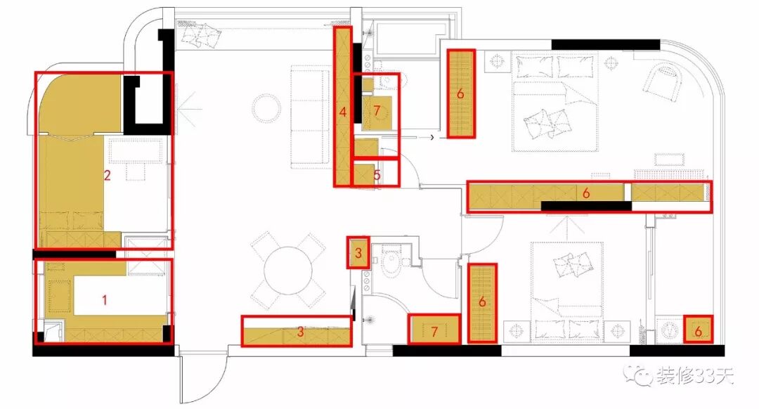
▲ 平面结构图
▲ 平面布置图
▲ INS风圆桌小餐厅,移动墙体增加餐厅柜的功能
▲ 从餐厅望向客厅视角
▲ 客厅,浅色空间搭配木色地板,一张蓝丝绒沙发点缀多色靠枕
▲ 沙发后面增加屋主书柜的需求,同时将柜体延伸至飘窗,变身零食柜空间
▲ 可随时切换沙发的摆放位置
▲ 在书柜背后留出空间设计清洁柜,家中动线中心点的位置,减少清洁动线,让家务变轻松
▲ 在客厅与好友欢聚时光
▲ 小书房的门洞是特意留成1.4m宽的,与客餐厅融为一体,使整个空间光线更加通透
▲ 厨房,棋格拼色地砖,木色橱柜配隐形拉手,水槽上方的小吊灯成为空间小亮点
▲ 客卫,整体通铺灰色石纹哑光瓷砖,玻璃淋浴房,悬空台盆柜,底部放编织收纳筐
▲ 浴室柜里面,提前预留好了插座,安置面膜冰箱
▲ 书房,设计储物榻榻米连接柜体,大面积落地窗搭配百叶帘,简约时尚
▲ 考虑到男主人的工作需要一个书桌,最后设计成一半的榻榻米一半办公区
▲ 次卧,浅粉色乳胶漆墙面,搭配金色床和粉色床上用品
▲ 金色壁灯与装饰画点缀床背景
▲ 主卧纳入阳台,安放一架钢琴,即是阳光休闲区兼具琴房
▲ 海军蓝背景墙点缀金色可调节角度的个性壁灯,灰色靠背大床搭配胡桃木床头柜,流露出精致的生活气质
▲ 敲掉飘窗扩展出主卫淋浴区,铺贴拼色六角砖,马桶背后的墙面设计壁龛实用美观
设计 | 本空设计(杭州)
微信:13616524525
后台回复「本空」可以看更多作品
媒体转载请注明装修33天并保留设计师联系方式
欢迎业主、设计师、装修公司免费投稿照片
装修33天商务合作微信:king194316
松爷店铺掌柜微信:yejia1702
本空设计其他作品推荐,点击下图查看136平黑白灰木极简风 简到不能再减的舒适宅
实用装修指南
装修33天 🏡 实用装修指南
喜欢我们的文章就随手转发到您朋友圈吧