点上方蓝字可关注 微信号:装修33天
▲ 建筑面积75平,使用面积55平,入户六边形拼色地砖,白色柜门搭配灰色墙面
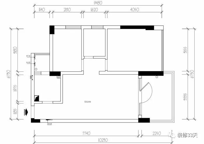
▲ 平面结构图
▲ 平面布置图
▲ 玄关区的更衣镜,木质镜框让原本狭小的空间映射餐厅最美的视角
▲ 入户墙面的灰绿色与餐厅墙面的暖木棕,形成撞色可以让空间层次有了生动之美
▲ 餐厅的空间划分,卡座的舒适与收纳,激活一个小小的角落
▲ 客厅,地面斜人字拼的木纹砖,搭配墙面的灰绿色,自然的延伸贯穿整个客餐厅区域
▲ 浅灰色墙面辅以白色文化砖制造斑驳背景
▲ 电视墙的灰绿色,森林系的自然感纯正细腻
▲ 空间收纳无处不在,餐厅卡座,过道收纳柜,电视组合柜,风格统一
▲ 客厅与休闲阳台打通,在小空间内规划出一个精彩的休闲空间兼具书桌,休闲地台,收纳柜
▲ 客厅望向阳台,
▲ 客厅望向餐厨场域,厨房的铝合金玻璃谷仓门,可以增加餐厅与厨房的互动,似透非透
▲ 厨房收纳容量不小,右侧墙面的洞洞板,强大的收纳更是利用立面空间,地柜木纹色与白色吊柜搭配清爽视觉感
▲ 卫生间干湿分区,提高使用效率
▲ 石色瓷砖通铺卫生间湿区,用浴帘取代玻璃淋浴房
▲ 客房设计榻榻米与书桌吊柜,考虑收纳与休息学习的功能
▲ 主卧满足舒适的休憩机能,床尾增设梳妆区,人字铺地面搭配墨绿色床背景,萤火虫吊灯提升空间颜值
▲ 墨绿色床背景,搭配木质家具与金色元素壁灯,精致而温馨
设计 | 迪尚设计(深圳)
微信:szdssj
电话:13590419225
后台回复「迪尚」可以看更多作品
媒体转载请注明装修33天并保留设计师联系方式
欢迎业主、设计师、装修公司免费投稿照片
装修33天商务合作微信:king194316
松爷店铺掌柜微信:yejia1702
迪尚设计其他作品推荐,点击下图查看88平现代极简二居 简单实用有质感
实用装修指南
装修33天 🏡 实用装修指南
喜欢我们的文章就随手转发到您朋友圈吧