点上方蓝字可关注 微信号:装修33天
▲ 建筑面积103平,年轻的业主夫妇索性把家设计成自己的生活馆
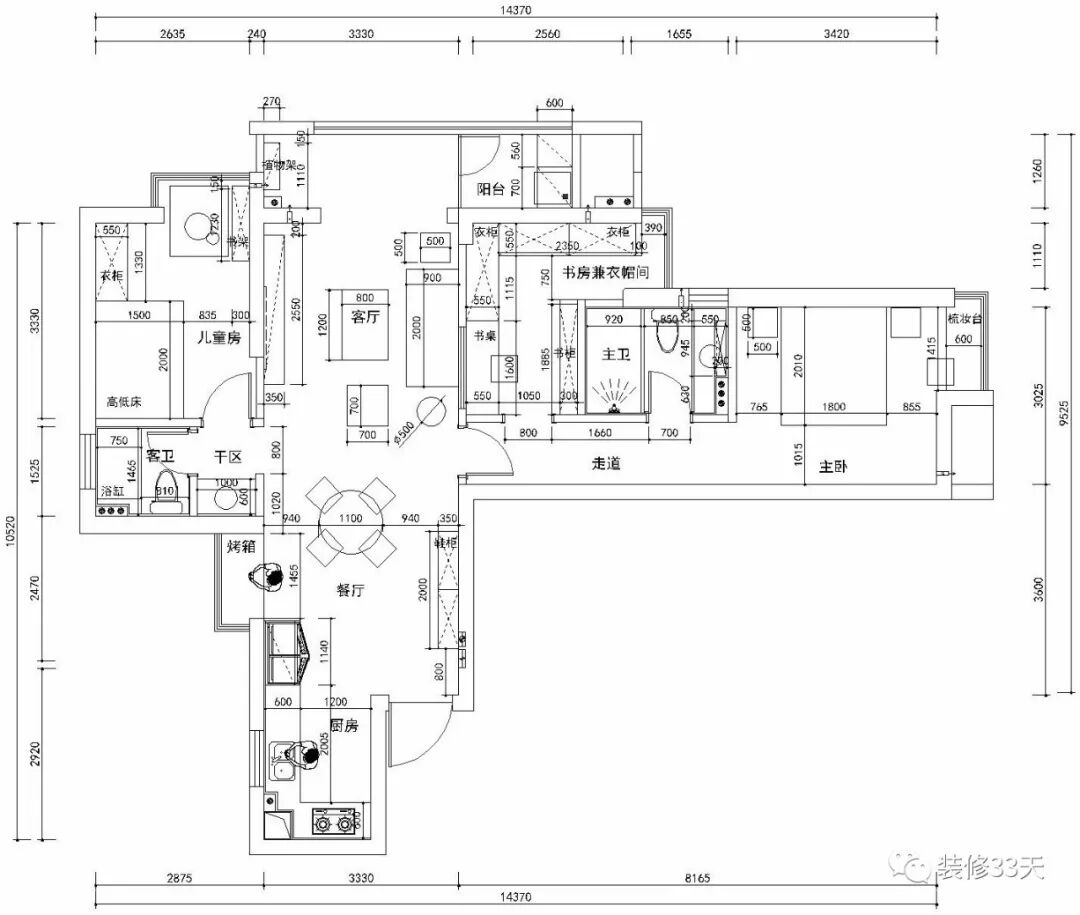
▲ 平面结构图
▲ 平面布置图
▲ 进门右侧设计鞋柜,不规则造型打破了常规,让整个空间更加灵动
▲ 在餐厅地面特意采用木纹砖搭六角砖铺贴,让餐厅和其他空间无形的独立出来
▲ 厨房地面铺贴模式与餐厅呼应,整体以黑白灰为配色调性,更好的衬托出家具软装的色彩
▲ Ferm Living 粉色六角花瓶搭配爵士白大理石台面,脏粉色+灰白色+黄铜带着高级感,沉静而不跳脱
▲ 客厅纳入阳台,增加使用面积与采光,同时打造一处休闲空间
▲ 金属、丝绒以及大理石元素是提升整个空间质感的小心机,墨绿色的沙发和粉色的餐椅相得益彰
▲ 在沙发背景墙面上做了一个折叠窗的设计,这样当窗户打开后,两个空间会更有互动和交流,也为生活增添了情调
▲ 书房望向餐厨视角
▲ 儿童房以灰白为基调,点缀木色家具,几座小山图形的黑板漆适合儿童涂鸦,让孩子有一方创作的小天地
▲ 主卧床头的一抹黄色,让卧室整个都活泼了起来,千鸟格纹是平衡整个空间色彩的点睛之笔
▲ 黄白色的空间里穿插蓝色床头柜与粉色的梳妆椅,意外却和谐
▲ 与客厅联系的书房与主卧衣帽间相通,整个取色干净,配上黄铜拉手,利落又有细节
设计 | 桃弥空间设计(武汉)
微信:18627061616
后台回复「桃弥」可以看更多作品
媒体转载请注明装修33天并保留设计师联系方式
欢迎业主、设计师、装修公司免费投稿照片
装修33天商务合作微信:king194316
松爷店铺掌柜微信:yejia1702
桃弥空间设计其他作品推荐,点击下图查看80平轻巧北欧三口之家 餐厅作书房立柱包柜子
实用装修指南
装修33天 🏡 实用装修指南
喜欢我们的文章就随手转发到您朋友圈吧