点上方蓝字可关注 微信号:装修33天
视 频
▲ 建筑面积80平,总造价50万,夺德国iF设计大奖,时尚奢华的空间表情下,铺述出多元的室内空间面貌
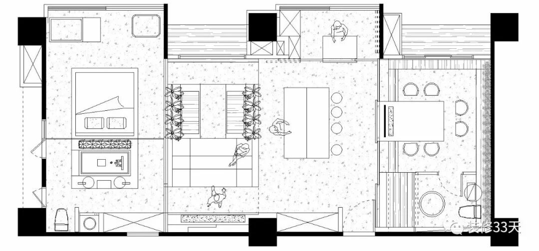
▲ 平面布置图
▲ 吧台区,木色台面搭配不锈钢吧台椅,满足工作与简餐功能
▲ 休闲区,利用细致丰富的布置陈设,围塑喧嚣都市外的边境体验
▲ 以阳光、空气、水、火、植栽等元素,创造独一无二的专属家居
▲ 休闲区设置投影设备,以满足观影需求
▲ 遂通过精细的布局变化,使人在空间中走动,所到之处皆是不同的感官体验
▲ 就餐区,功能性家具,搭配原粹的自然生态绿植墙面作背景,满足实际使用需求并赋予新颖创意
▲ 整个空间中均采用玻璃取代隔墙,打造属于业主的私密空间
▲ 通透的空间设计,当夜幕降临之际,都市的绚丽灯景一览无遗
▲ 采用古法水磨石地坪,搭配现代奈米镜化处理施工,将生态景致搬入家中,实现与自然为邻的住宅憧憬
▲ 主卧大床与后方洗漱区域以玻璃相隔
▲ 主卧,玻璃墙面搭配水泥预铸压制的墙面,以干式工法铺整,营造坚实纯净外衣下,原粹本质的空间灵魂
▲ 将窗景改造为明亮通透的玻璃幕墙,使屋主能尽享窗外光影变化及街景样貌
▲ 采用玻璃砖打造晶莹剔透的卫生间,搭配绿植制造清新感
设计 | WID建筑室内设计(台湾)
微信:fish112611
后台回复「WID」可以看更多作品
媒体转载请注明装修33天并保留设计师联系方式
欢迎业主、设计师、装修公司免费投稿照片
装修33天商务合作微信:king194316
松爷店铺掌柜微信:yejia1702
WID建筑室内设计其他作品推荐,点击下图查看获多次国际设计大奖 现代轻工业别墅
实用装修指南
装修33天 🏡 实用装修指南
喜欢我们的文章就随手转发到您朋友圈吧