点上方蓝字可关注 微信号:装修33天
▲ 建筑面积84平,半包8万,总造价30万,入户收纳巧妙的与电视柜结合,增加了入住收纳也缓冲了视觉,连挂伞的位置都考虑了,入户门做了毛毡贴面处理
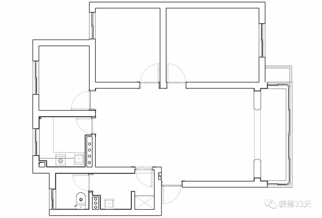
▲ 平面结构图
▲ 平面布置图
▲ 客厅以白色为基调,配以木色地板,加铺灰色地毯,纳入阳台加做储物窗台,高度设计不影响室内采光
▲ 留白墙面点缀不同尺寸装饰画,灰色布艺沙发添加蓝色靠枕提亮,给绿植配了可以滑动的花盆底座,方便给绿植挪位
▲ 白色的百叶窗可以很好的控制屋内的光线,不仅成本上更优,而且在气质上更接近北欧
▲ 木色和植物打造自然系的家居生活
▲ 客厅望向餐厅视角
▲ 餐厅与客厅相连接,风格偏向木系自然风,自然氛围较强的空间内的食欲会更强,虽处于过厅,动线较为杂乱,但很好的利用了有限的空间设计收纳柜
▲ 餐厅的颜色主要是白色搭配木色,让餐厅显得更加的纯粹、简单,餐边收纳融入了冰箱位置,还给吸尘器收纳找好了位置
▲ 厨房采用现代感的灰白搭配,空间不大但是却给人比较宽敞明亮的感觉
▲ 功能房满足业主对半屋榻榻米的要求,既充当书房功能,又可以在此休息,还可以作储藏室,柜体设计平衡了收纳和展示
▲ 功能房清新一角,特意设计一盏壁灯补充照明
▲ 主卧,留白墙面搭配木质家具,粉红色色调的窗帘让整个空间变得温柔起来,衣柜侧的床头柜选用可移动款式,不会影响衣柜使用
▲ 床头一角,肌理自然,色调温馨
▲ 卧室空间不仅设计移门大衣柜,床尾加设电视柜收纳以及梳妆台
▲ 卫生间干湿分区,灰白搭配中点缀木色元素,浴室柜款式也遵循藏八露二法则,可以让使用更加方便
▲ 卫生间,浴缸叠加淋浴功能,洗衣机干衣机叠放,再也不用担心江南梅雨季
设计 | TIDCASA设计(杭州)
电话:18258804803(微信同号)
媒体转载请注明装修33天并保留设计师联系方式
欢迎业主、设计师、装修公司免费投稿照片
装修33天商务合作微信:king194316
松爷店铺掌柜微信:yejia1702
实用装修指南
装修33天 🏡 实用装修指南
喜欢我们的文章就随手转发到您朋友圈吧