点上方蓝字可关注 微信号:装修33天
▲ 建筑面积95平,总造价25万,入户通过打造多功能柜与装饰画点缀,弱化狭长的走廊
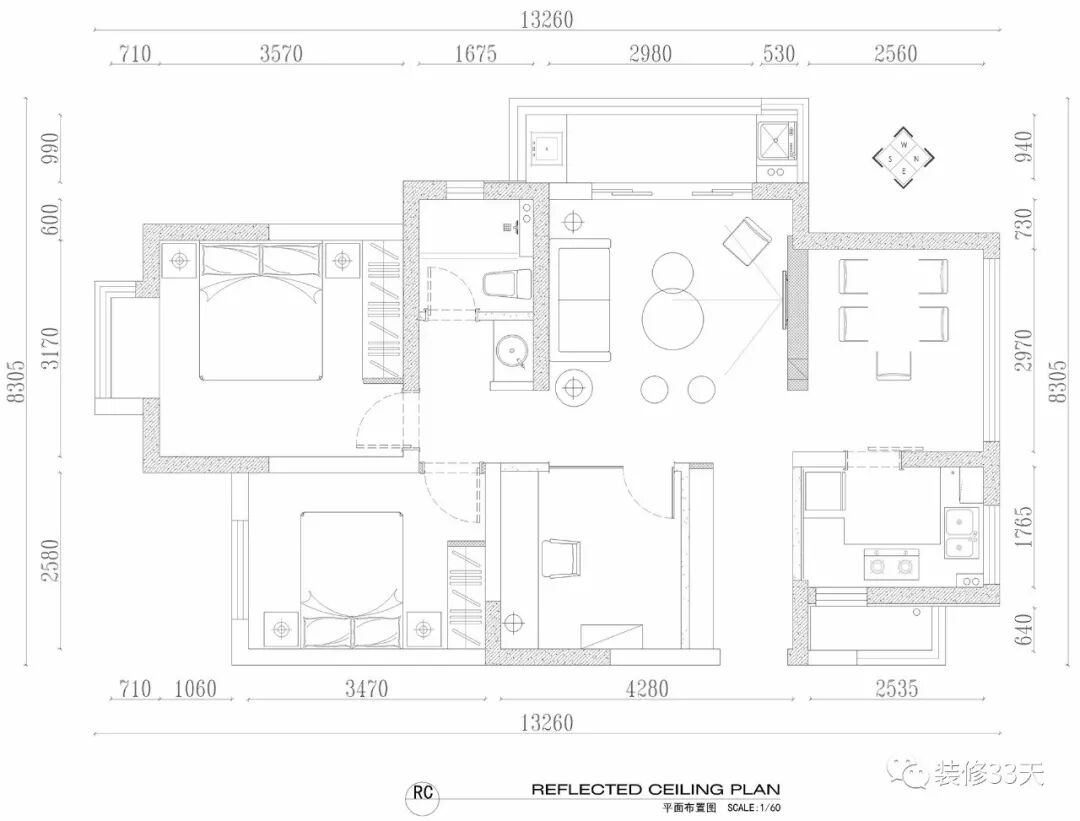
▲ 平面布置图
▲ 客厅地面通铺木地板,极简顶面用点光源取代主灯
▲ 浅色调空间加以阳台大面积采光,辅以白纱,让空间更显明亮宽敞
▲ 浅灰色布艺沙发搭配留白背景,通过装饰画与壁灯点缀
▲ 铁件玻璃茶几搭配编织地毯,通透温馨
▲ 客厅一角
▲ 半高电视背景,设计内嵌式置物框架,并安置插座
▲ 阳台视野开阔,设计收纳、水槽与升降晾衣架
▲ 客厅望向书房,采用玻璃作隔断,互不影响视线与光线
▲ 从书房望向客厅视角
▲ 客餐厅通过电视背景作区域隔断,圆孔增加背景设计感
▲ 黑白灰的餐桌靠墙放置,点缀手工墙饰,红色吊灯点缀空间色调
▲ 厨房以玻璃移门隔离油烟,黑白灰的空间用色简洁大气
▲ 过道通往私领域空间
▲ 次卧,整体延续黑白灰的低饱和色调,玻璃吊灯与装饰画作修饰
▲ 主卧,浅色硬装空间,通过深色家具软装凸显层次
▲ 利用飘窗打造卧室休闲一角
▲ 卫生间干湿分区,提高使用效率
设计 | 大斌空间设计(苏州)
微信:ruoyinyoulan924
后台回复「大斌」可以看更多作品
媒体转载请注明装修33天并保留设计师联系方式
欢迎业主、设计师、装修公司免费投稿照片
装修33天商务合作微信:king194316
松爷店铺掌柜微信:yejia1702
大斌空间设计其他作品推荐,点击下图查看135平现代混搭四居 为家添点活力色彩
实用装修指南
装修33天 🏡 实用装修指南
喜欢我们的文章就随手转发到您朋友圈吧