点上方蓝字可关注 微信号:装修33天
▲ 建筑面积133平,入户玄关以木质元素为主,用抽象画和装饰品点缀,提升空间格调
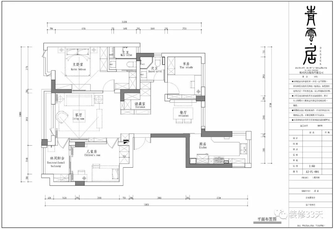
▲ 平面布置图
▲ 玄关作为客餐厅的分隔,功能区之间各自独立,却又保持着良好的连贯性
▲ 餐桌靠着窗边,增加自然采光,在光线的渲染下,用餐环境尽显优雅
▲ 餐厅背景墙设计置物层板,陈列摆设
▲ 与客厅同色系的餐桌,木系元素让整体空间联系的更加紧密统一
▲ 客厅,黑白灰三色为基调,无主灯设计
▲ 以简洁的家具造型为主,中性的灰色调沉稳大气
▲ 木质元素嵌入黑色柜体,显得空间温馨不沉闷,自然与优雅完美融合在一起
▲ 大面积的木色KD板拉线设计出电视背景墙,纯粹的黑色电视机柜完美嵌入其中
▲ 电视背景墙后藏着两个分别通向儿童房和休闲阳台的隐形门
▲ 儿童房以纯净的裸粉色与白色为主调,给人以温暖轻松的感觉
▲ 书房,延用轻盈而温润的木元素,塑造一个多功能素雅空间
▲ 利用书房的犄角旮旯增加储物功能
▲ 主卧地面工字铺贴木质地板,搭配灰色的乳胶漆墙面,整体简约干净
▲ 床头一角,干净纯粹
▲ 床尾与床侧衣柜,以及走廊定制柜,足矣媲美衣帽间的储物机能
▲ 卫生间沿用灰色系瓷砖,镜柜与地柜让物品合理安放,玻璃淋浴房尽量做到空间干湿分区
设计 | 青云居设计(杭州)
电话:0571-87655093
微信:18106530545
后台回复「青云居」可以看更多作品
媒体转载请注明装修33天并保留设计师联系方式
欢迎业主、设计师、装修公司免费投稿照片
装修33天商务合作微信:king194316
松爷店铺掌柜微信:yejia1702
青云居设计其他作品推荐,点击下图查看89平时尚简美三室 格调设计装品质生活
实用装修指南
装修33天 🏡 实用装修指南
喜欢我们的文章就随手转发到您朋友圈吧