点上方蓝字可关注 微信号:装修33天
▲ 建筑面积80平,半包8万(轻工辅料+水电),设计师结合现代主义,打造舒适的宜居空间
▲ 一层平面布置图
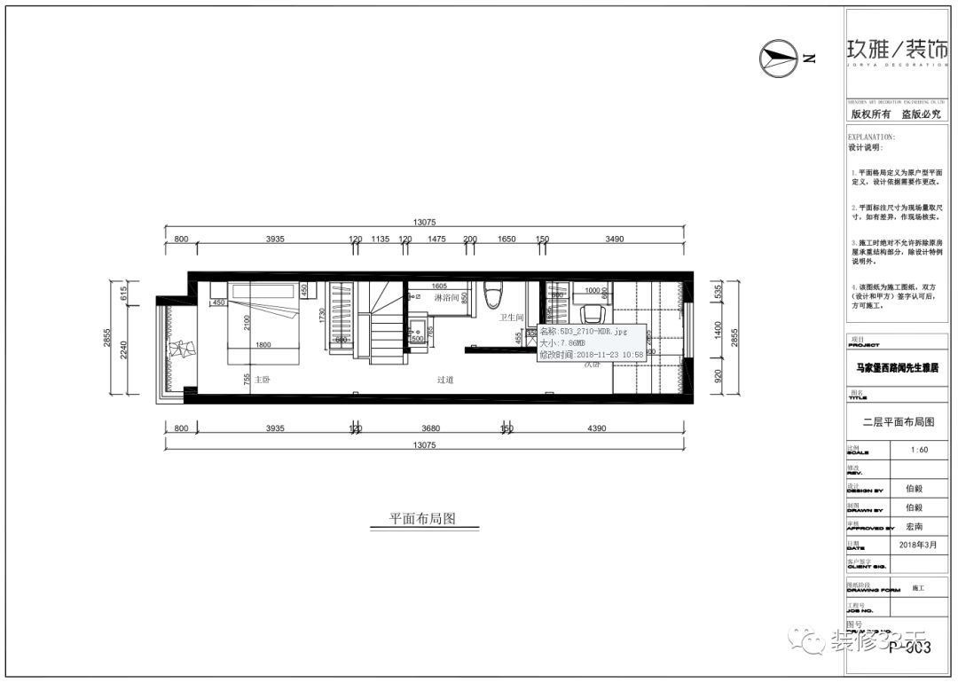
▲ 二层平面布置图
▲ 入户在楼梯底部放一个定制柜,增加储物,搭配一个晾衣架+小牛椅,进门穿鞋挂衣都很方便
▲ 餐厅与入户收纳结合,配置小餐桌,原木色搭配清新绿,用桌布与吊灯装饰
▲ 户主爱养鱼,水族箱和定制柜一体,衔接西厨U型台面,一直延伸到客厅
▲ 客厅地面采用人字铺木地板,空间整体延续清新色调搭配
▲ 大面积景观窗配置木质百叶帘,回字型收纳柜嵌入电视机作背景
▲ 从客厅望向后方西厨区,更有视觉层次感
▲ 定制黑框玻璃门,打造中厨独立区,与客厅,西厨分隔
▲ 开放式西厨区,打造U型橱柜,矮墙隔断厨房与客厅空间
▲ 中厨空间精致有序,整体以白色为基调搭配木质台板取代传统吊柜
▲ 进入二层,做木质开槽造型,加上条形灯柱,更有设计感
▲ 卧室延续人字铺木地板,搭配留白空间点缀装饰画与可旋转壁灯作背景修饰
▲ 卫生间淋浴,马桶,洗手台三区独立,提高使用效率
▲ 设计师团队与业主合照
设计 | 玖雅设计(北京)
微信:18611911806
后台回复「玖雅」可以看更多作品
媒体转载请注明装修33天并保留设计师联系方式
欢迎业主、设计师、装修公司免费投稿照片
装修33天商务合作微信:king194316
松爷店铺掌柜微信:yejia1702
玖雅设计其他作品推荐,点击下图查看120平现代简约三室 次卧壁挂床秒变瑜伽室
实用装修指南
装修33天 🏡 实用装修指南
喜欢我们的文章就随手转发到您朋友圈吧