点上方蓝字可关注 微信号:装修33天
▲ 建筑面积117平,纯软装改造总价25万,设计师在不改动原有精装房硬装的前提下,呈现眼前一亮的深色现代风
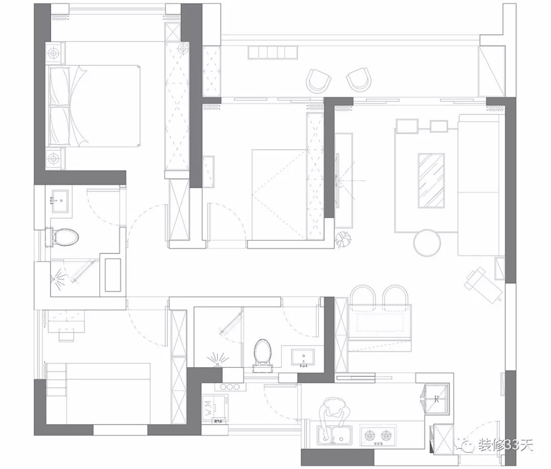
▲ 平面结构图
▲ 平面布置图
▲ 客厅的基调随着木地板定下深色度,极简顶面用造型吊灯点缀,特意加长空调出风口,形成视觉上的统一
▲ 线型深色沙发,搭配白色条纹地毯,沙发背景用灯饰点缀,以柔和的点光源营造出室内文艺又怀旧的氛围
▲ 咖啡色丝绒主沙发搭配木质茶几,柔化尖锐的边角细节
▲ 室内简约样式的电视柜和地板样式的电视背景墙,点缀民国风情的留声机摆件与绿植
▲ 开阔的木色阳台区域,置入洗衣机,黑色铁管的晾衣架搭配灯具,实用又有设计感
▲ 客餐厅互通,以机能家具作场域分割
▲ 餐厅,风格独特的错落式木柜,靠柜摆放简约系木质长型餐桌,以餐椅和长凳结合的形式,节省空间
▲ 走廊端景采用两幅白云装饰画作修饰
▲ 储物间将一面墙做成蓝色,对面是米白色的隐藏式柜子,增加储物空间,既美观又实用
▲ 儿童房以蓝天白云为灵感,搭配屋型上下铺,打造和谐实用的空间
▲ 主卧,雾气灰背景墙中点缀金色墙饰,深木色围合床头连接床头柜功能
▲ 将飘窗打造成休闲一隅,咖色窗帘与光线倒映出光影
▲ 将主卧衣柜的一部分设计成书桌,既节省空间也方便工作
设计 | 漾设计(深圳)
微信:13922880680
后台回复「漾设计」可以看更多作品
媒体转载请注明装修33天并保留设计师联系方式
欢迎业主、设计师、装修公司免费投稿照片
装修33天商务合作微信:king194316
松爷店铺掌柜微信:yejia1702
漾设计其他作品推荐,点击下图查看120平现代简约三室 质感高级色调清新
实用装修指南
装修33天 🏡 实用装修指南
喜欢我们的文章就随手转发到您朋友圈吧