点上方蓝字可关注 微信号:装修33天
▲ 使用面积50平,总造价23万,设计师将整个空间打造成女主人的私人领域
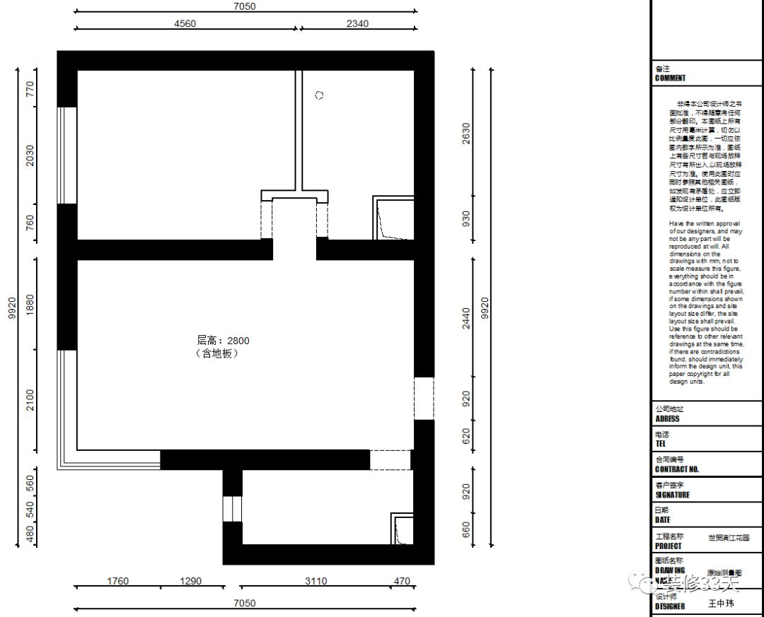
▲ 平面结构图
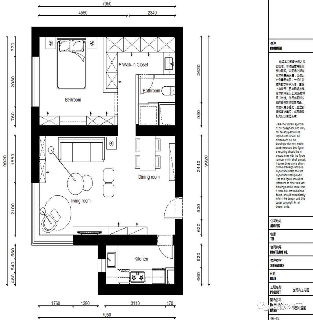
▲ 平面布置图
▲ 客厅通铺木色人字拼地板,留白空间结合点光源顶面,呈现简洁利落的硬装空间
▲ 利用转角阳台打造休闲一隅
▲ 简洁的空间搭配高饱和色彩的家具单品,营造舒适的居家氛围
▲ 转角落地窗搭配定制款纱帘,成为空间亮点
▲ 收纳柜结合电视柜的设计,调整电视机壁挂高度,让人在沙发上看电视时形成平视角度
▲ 小空间的客餐厅以过道作场域分割
▲ 小尺寸的沙发边几也是高颜值一角
▲ 餐厅,餐桌搭配餐椅长凳的设计节省空间,金属元素吊灯瞬间让就餐区变的别致起来
▲ 小厨房只有一面小窗户,大面积使用白色立面与柜门
▲ 卧室,人字铺木地板搭配暗红色墙面,整体定制电视柜连接出梳妆台
▲ 走廊式衣帽间,满足小空间拥有大储物,用玻璃代替实墙,更大程度的解决空间的通透问题
▲ 转角衣帽间延伸至走廊尽头的卫生间干区,左侧柜体挑空为女主预留摆放化妆品的空间
▲ 卫生间整体以黑白配色,在淋浴区单独跳出整个黑色空间,用浴帘代替玻璃推门,让空间更有弹性
设计 | 独立设计师 王中玮(上海)
微信:WangZw_Design
后台回复「王中玮」可以看更多作品
媒体转载请注明装修33天并保留设计师联系方式
欢迎业主、设计师、装修公司免费投稿照片
装修33天商务合作微信:king194316
松爷店铺掌柜微信:yejia1702
独立设计师 王中玮其他作品推荐,点击下图查看119平现代混搭四室 餐厨动线均为收纳
实用装修指南
装修33天 🏡 实用装修指南
喜欢我们的文章就随手转发到您朋友圈吧