点上方蓝字可关注 微信号:装修33天
▲ 建筑面积270平,总造价160万,黑白灰外立面双层住宅配以雅致庭院,满足三代同堂的居住需求
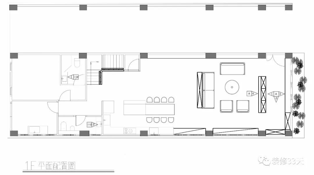
▲ 一层平面布置图
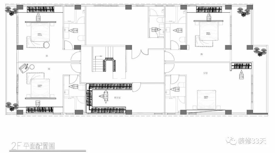
▲ 二层平面布置图
▲ 入户,玄关矮柜材质结合深色木条来强调光的层次感
▲ 真正的完全开放式设计,多面采光窗与简洁的顶面,显的空间更加开阔明亮
▲ 客厅,灰砖地面加铺深灰色大地毯,现代简约风皮质大沙发点缀色彩靠枕与钓鱼灯
▲ 入户隔断墙与电视背景墙合二为一,咖色石面右下角镂空收纳影音设计
▲ 餐厅与厨房融为一体,木面长餐桌可同时容纳多人就餐,与料理吧台连接相互延展功能
▲ 米色踏步搭配纯白色护栏,加装木质扶手
▲ 楼梯台阶与二层地面采用不同的材质铺贴,以强调楼梯的独立性
▲ 建筑轴心的楼梯位置开口采光天井,并设计弧线楼梯矮墙呼应光的流动
▲ 主卧,木质地板搭配极简点光源顶面设计,大面积落地窗创造室内明亮采光
▲ 灰褐色调大床背靠水泥色置顶背景墙,以迷雾森林装饰画与壁灯点缀
▲ 主卧背景墙后方则规划为步入式衣帽间,木饰面柜体延伸出梳妆台功能
▲ 衣帽间,半开放式柜体设置挂衣杆,以不同的收纳方式满足衣帽间的储物需求
设计 | WID建筑室内设计(台湾)
微信:fish112611
后台回复「WID」可以看更多作品
媒体转载请注明装修33天并保留设计师联系方式
欢迎业主、设计师、装修公司免费投稿照片
装修33天商务合作微信:king194316
松爷店铺掌柜微信:yejia1702
WID建筑室内设计其他作品推荐,点击下图查看拿下德国iF设计大奖 80平创意现代时尚宅
实用装修指南
装修33天 🏡 实用装修指南
喜欢我们的文章就随手转发到您朋友圈吧