点上方蓝字可关注 微信号:装修33天
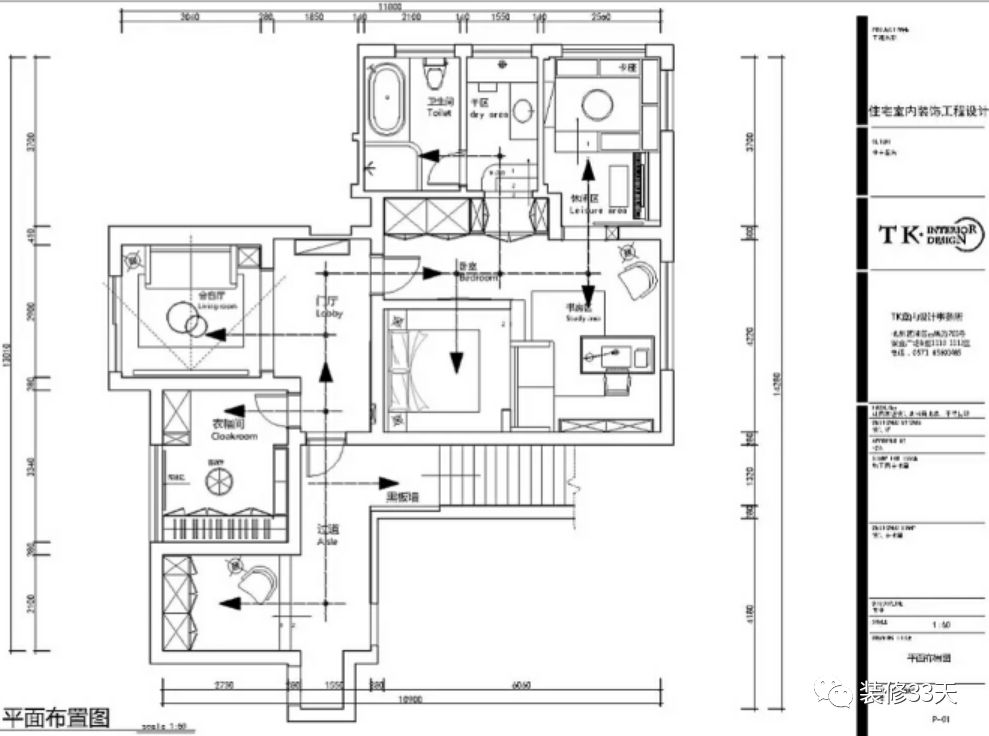
▲ 设计面积100平,造价35万,设计师结合业主要求,将别墅中的一层打造属于业主自己的一方空间
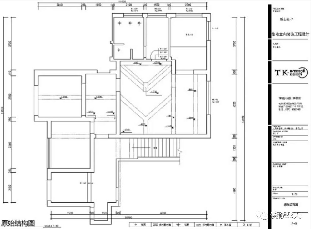
▲ 平面结构图
▲ 平面布置图
▲ 客厅与门厅相通,地面通铺鱼骨拼地板,娇小的冰箱和玻璃收纳柜满足日常需求
▲ 客厅,极简顶面用点光源,灰粉窗帘搭配墨绿电视柜,提升空间颜值
▲ 采用木地板上墙做沙发背景,呼应鱼骨拼地板,色调和谐又温暖
▲ 浅色皮沙发与圆几调性一样,舒适温馨
▲ 入门一侧做整面储物柜,增加收纳,将卫生间门设计隐形门与柜门无缝连接
▲ 卧室套房设计,纳入书房、休闲区,地面延续鱼骨拼地板,几何顶面设计感十足
▲ 床尾规划出书房区域,大面积落地窗增加室内采光,棱角分明的顶面用点光源点缀,条纹地毯简单温暖
▲ 莫兰迪粉的书架呼应圆几色调,且满足收纳展示机能
▲ 浅咖色背景墙与卡其皮沙发颜色呼应,塑造空间沉静的气质
▲ 睡眠区域,现场做的水泥漆地台,上面放置舒适的床垫,几何吊顶点缀金属吊灯,地板上墙营造温馨的睡眠氛围
▲ 书房望向休闲区域
▲ 休闲区,借原本下沉区域,设计师规划为卡座,使空间错落有兼具美感
▲ 卡座同样刷水泥漆,莫兰迪绿的背景墙嵌入电子壁炉营造氛围
▲ 卫生间也是下沉式,干湿分区设计,地面铺设灰色地砖,绿墙与窗外风景呼应
▲ 自砌石纹台面延伸设计出梳妆台,提高空间利用率
▲ 淋浴房使用玻璃隔断,并配备浴缸,水泥灰墙砖与地砖呼应,方便打理
设计 | TK原创设计(杭州)
微信:tk_design
电话:15957143882
后台回复「TK」可以看更多作品
媒体转载请注明装修33天并保留设计师联系方式
欢迎业主、设计师、装修公司免费投稿照片
装修33天商务合作微信:king194316
松爷店铺掌柜微信:yejia1702
TK原创设计其他作品推荐,点击下图查看143平现代简约三口之家 每个角落都能发朋友圈
实用装修指南
装修33天 🏡 实用装修指南
喜欢我们的文章就随手转发到您朋友圈吧