点上方蓝字可关注 微信号:装修33天
▲ 建筑面积103平,北欧风色彩的空间以实用为主功能,兼具美貌与收纳为一体
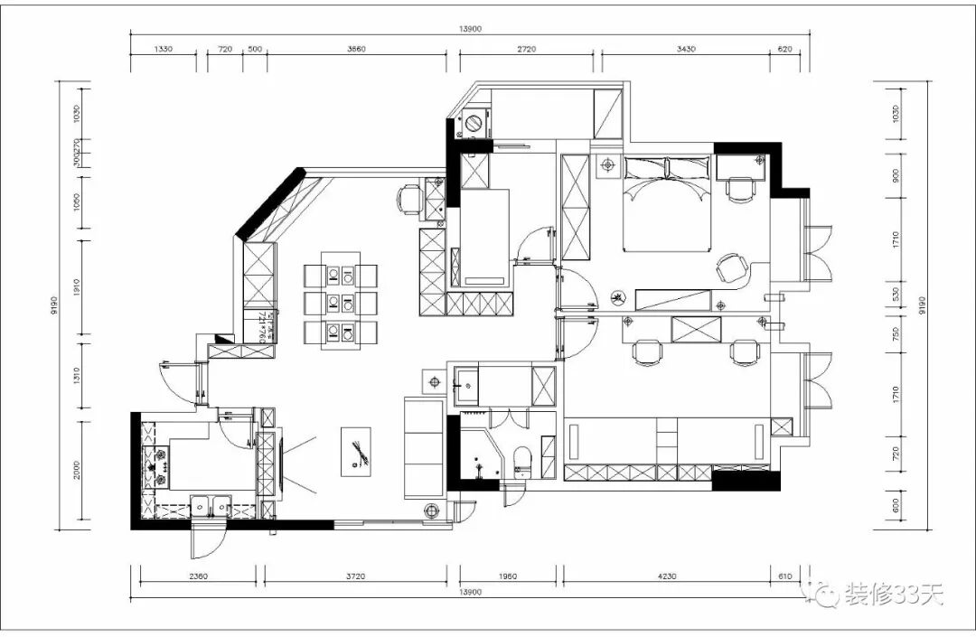
▲ 平面结构图
▲ 平面布置图
▲ 毕加索蓝的地毯和如水雾般氤氲的蓝橙色抽象画作,为客厅增添几分艺术气息
▲ 奶油色皮沙发搭配蓝色边几与台灯,纯白百叶窗帘巧妙地过滤自然光线
▲ 浅灰色储物机能的电视背景墙,收纳影音设备
▲ 客厅望向餐厅视角
▲ 餐厅纳入阳台扩大面积,玻蓝餐灯与银灰餐椅相映,米白色柜橱的背景提供充足餐边收纳并预留冰箱位置
▲ 灰蓝色面包砖做厨房仿溅墙搭配白色橱柜,使小空间透出高雅精致的光泽感
▲ 为双胞胎小公主专门打造出一片粉色世界,让女孩们各自拥有着独立的空间
▲ 沿床壁柜上摆放着布偶和玩具,充满天马行空的想象创造力信手拈来
▲ 对称设计粉色儿童床,搭配墙面的不对称收纳柜,将飘窗同时打造成休闲一隅
▲ 床边半高的柜子前端可以完全拉出来更好的利用了内部空间
▲ 主卧,木地板与木元素家具相呼应,为浅灰蓝色空间增添温度
▲ 玻蓝色的床品与装饰画的颜色融为一体,实木的肌理,内敛的祖母绿,流露着卧室的静
▲ 床边梳妆台延伸出床头柜,环壁式书桌将实用性利用到最大
▲ 卫生间干湿分离,浴室柜分层分区收纳,方便日常瓶瓶罐罐的拿取
▲ 蓝色边柜与淋浴区工字铺玻蓝色墙砖,呼应整室色调,提供一个令人舒适愉悦的洗浴空间
设计 | 标点设计(深圳)
微信:15112516480
微信公众号:SZ-BDSJ
后台回复「标点」可以看更多作品
媒体转载请注明装修33天并保留设计师联系方式
欢迎业主、设计师、装修公司免费投稿照片
装修33天商务合作微信:king194316
松爷店铺掌柜微信:yejia1702
标点设计其他作品推荐,点击下图查看120平简约混搭四室 入户即是西式厨房
实用装修指南
装修33天 🏡 实用装修指南
喜欢我们的文章就随手转发到您朋友圈吧