点上方蓝字可关注 微信号:装修33天
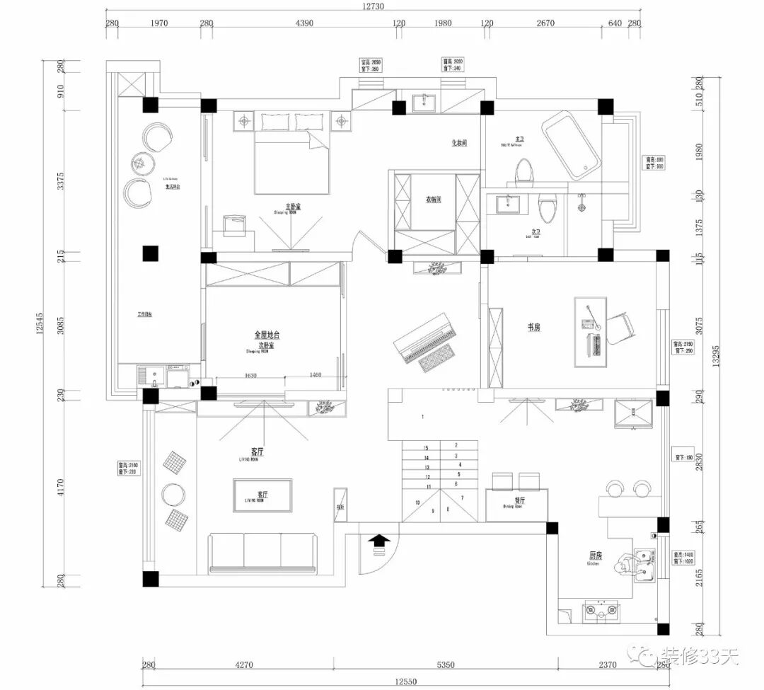
▲ 建筑面积147平,总造价60+万,半包14万,合理利用空间,将通往露台的楼梯放在入户门一侧,楼梯下做换鞋区
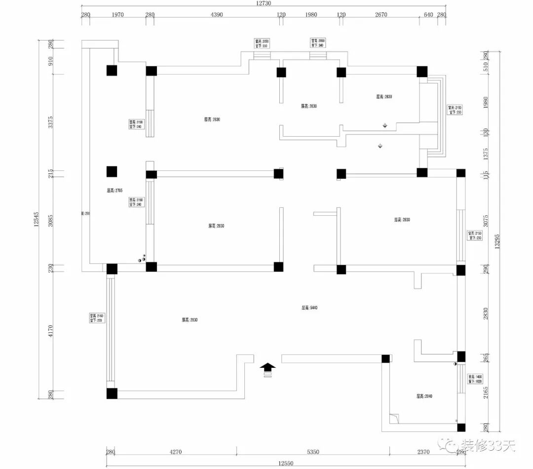
▲ 平面结构图
▲ 平面布置图
▲ 客厅,地面通铺木地板加铺麻编地毯,黑白木基调空间,极简顶面装轨道灯
▲ 大面积落地窗,搭配整排定制飘窗结合书架功能
▲ 电视背景采用黑框玻璃、原木饰面、白色大理石做造型,色彩错落结合,制造视觉层次感
▲ 客厅望向玄关与餐厨区,餐厨区地面整体抬高,错层设计让空间更加层次分明
▲ 餐厅与厨房相邻,地面通铺深色地砖,小方桌与餐椅,不占空间又方便打理
▲ 将阳台纳入餐厨区,扩大面积增置吧台,提升氛围与颜值
▲ 开放式厨房,一面涂刷黑板漆,写着每周菜单,装遥控凉霸,夏天下厨也不怕
▲ 次卧,日式地台设计,木面黑框推拉门作隔断与卧室风格相呼应
▲ 木质百叶帘与客厅隔断,增加通透性,墙面嵌入木色置物板代替床头柜,床尾设计置顶衣柜
▲ 次卧望向书房门口,黑色谷仓门颜值高
▲ 书房,大面积落地窗增加采光,投影搭配躺式沙发,闲时放松
▲ 主卧是一个豪华套房,满足女主人的要求,纳入衣帽间、书桌、化妆台、浴室
▲ 地面延续木地板,灰色床头背景用吊灯点缀,与阳台用玻璃移门隔断
▲ 阳台沙发选自宜家
▲ 主卧和次卧共享一个7米大阳台,满足业主各种需求
▲ 床头角落刚好放下书桌,不浪费任何空间
▲ 卫生间干湿分区设计,干区台面长度为1980mm,主卫和衣帽间移门都选择上轨道,更好打理
▲ 主卫,地面与墙面采用水泥灰瓷砖,墙面设计壁龛,方便置物
▲ 楼梯采用镂空设计、木质踏板+玻璃扶手,提升空间采光通风
▲ 90平全景大露台,可以将投影外置,适合周末朋友聚会
▲ 夜晚,朋友家人一起参加BBQ聚餐+观影
设计 | 犀宅原创装饰(上海)
微信:18501680515(加微信请备注装修33天)
后台回复「犀宅」可以看更多作品
媒体转载请注明装修33天并保留设计师联系方式
欢迎业主、设计师、装修公司免费投稿照片
装修33天商务合作微信:king194316
松爷店铺掌柜微信:yejia1702
犀宅原创装饰其他作品推荐,点击下图查看艺术家的小联排 6米高大书柜太酷了
实用装修指南
装修33天 🏡 实用装修指南
喜欢我们的文章就随手转发到您朋友圈吧