点上方蓝字可关注 微信号:装修33天
▲ 建筑面积360平,总造价150万,入户地面采用木纹砖结合抿石子工艺,搭配岩板砖墙,木纹架空定制柜体满足储物机能
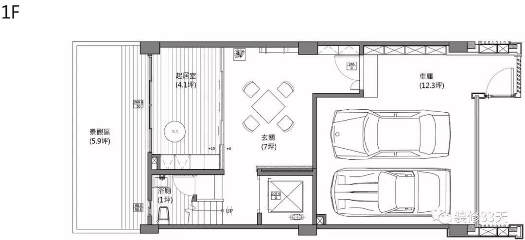
▲ 1F平面布置图
▲ 2F平面布置图
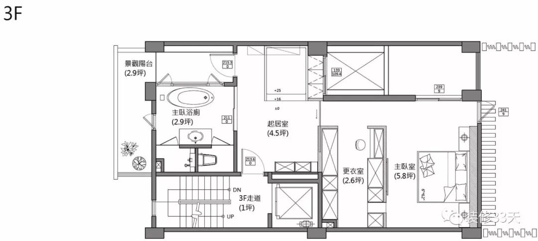
▲ 3F平面布置图
▲ 4F平面布置图
▲ RF平面布置图
▲ 一层起居室直通户外开心小农场,制造开阔明快的空间感
▲ 二层客厅,地面通铺哑光灰地砖,极简顶面用点光源取代主灯,折角沙发与地毯色调呼应,辅以钓鱼灯点缀
▲ 利用大量的绿色植栽与玻璃建材,佐以色调清爽的木质与大地色软件修饰,创造悠闲的度假气息
▲ 在客厅中间设计一道矮隔断,既是电视背景墙,又作吧台与置物机能
▲ 凿面石皮与铁件结合的电视吧台,质感丰富
▲ 户外的一整面翠绿植栽墙,兼具环保与美观
▲ 以开放式设计串连客、餐厅与厨房,更拓增客厅开窗面积,大幅度提升公共空间通透度
▲ 利用原有家具改制成的大张餐桌,节省预算,打造半开放式餐边柜,原木色轻盈自然
▲ 利用灰玻拉门切分厨房与餐厅场域,厨房内部搭配附有水槽与加热功能的中岛吧台
▲ 餐厨场域通往客厅,一整面原木色层次感背景墙,隐藏卫生间与楼梯,电梯的设计
▲ 三层为主卧室空间,在过厅打造地台式休闲一角,对面半开放式收纳柜体,用于收纳与展示
▲ 主卧整体以清浅柔和的基调营造舒适的休憩氛围,定制拼色床背景搭配木纹架空床头柜
▲ 整面落地玻璃让视线直通绿意阳台,增大视觉空间的同时确保室内采光
▲ 主卧步入式衣帽间隐藏于电视背景墙后方,白色+原木的基调,质感自然
▲ 主卧通向主卫与景观阳台,皆采用玻璃门片,保证室内采光
▲ 主卫,石色墙砖搭配木纹地砖,浴缸设置在景观窗一旁,顶面设计卷帘确保私密性
▲ 主卫对外的景观区,凿面石皮背景,下方清水鱼池,清雅静谧
▲ 将洗衣房设置在阁楼夹层,与阳台动线相邻,方便洗晒
▲ 夹层工作室,留白墙面搭配深浅色木作,后方生活阳台用卷帘遮挡
▲ 顶层次卧,局部采用玻璃取代实墙,木地板从地面延伸至床背景与顶面连接,加入灯带凸显层次
▲ 设计团队别出心裁在顶楼空中花园打造梦幻玻璃卫浴,玻璃天窗可享日光浴或观星
▲ 顶层露台的景观设计给整个设计添加色彩与惊喜
设计 | 独立设计师 杨允帧
微信:houhongjun3
设计费800-1200元/平 服务全国
后台回复「杨允帧」可以看更多作品
媒体转载请注明装修33天并保留设计师联系方式
欢迎业主、设计师、装修公司免费投稿照片
装修33天商务合作微信:king194316
松爷店铺掌柜微信:yejia1702
独立设计师 杨允帧其他作品推荐,点击下图查看现代简约三层排屋 质感细腻功能完善
实用装修指南
装修33天 🏡 实用装修指南
喜欢我们的文章就随手转发到您朋友圈吧