点上方蓝字可关注 微信号:装修33天
▲ 半包6万,主材7万,家具家电7万,客厅采用层次不同的灰色和咖色为基调,配合点光源设计,简约不简单
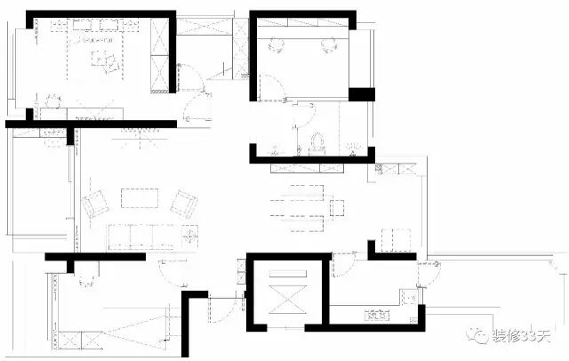
▲ 平面布置图
▲ 深色的布艺沙发,用橙色的抱枕提亮,背景墙上一对黑白的装饰画点缀,黑胡桃的茶几和电视柜增加了木质的温润
▲ 餐厅也是用的黑胡桃餐桌椅加长凳,一边是一个白色的餐边柜,一边墙上是软木照片墙
▲ 餐桌上方的Tom Dixon灯具,与餐厅环境完美融合
▲ 白色的谷仓门定制了内嵌玻璃款,可以更好的引入光线
▲ 白色烤漆橱柜搭配灰色水泥砖
▲ 卧室用了深色床头背景,搭配灰色的床品和窗帘,宁静的氛围更适合休息
▲ 衣柜移门的造型也是简单至极
▲ 儿童房是蓝色系墙面,高低床下方是玩具柜,很实用
▲ 书房书桌和书柜的设计也是简单明了
▲ 卫生间干湿独立分区,干区定制的洗手台加上镜柜可以增强收纳能力
▲ 卫生间和干区都采用白色墙砖搭配黑白花砖地砖,层次分明
▲ 阳台用的木纹砖别有一番味道
设计 | 1890设计(合肥)
微信:yibajiulingkefu
QQ:3085466200
后台回复「1890」可以看更多作品
媒体转载请注明装修33天并保留设计师联系方式
欢迎业主、设计师、装修公司免费投稿照片
装修33天商务合作微信:king194316
松爷店铺掌柜微信:yejia1702
1890设计其他作品推荐,点击下图查看42平清新精致小蜗居 甜点色墙面贯穿整室
实用装修指南
装修33天 🏡 实用装修指南
喜欢我们的文章就随手转发到您朋友圈吧