点上方蓝字可关注 微信号:装修33天
▲ 建筑面积99平,精装房软装改造16万,设计的好不好看,三分硬装后,用七分软装让生活更有品位
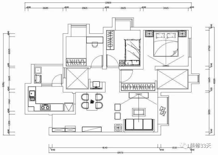
▲ 平面布置图
▲ 入户左侧规划为餐厅,丝光感的米色壁纸,浅色基调中加入金属元素修饰
▲ 玻璃餐桌靠墙放置留出宽敞过道,精致餐桌布置
▲ 一组美式成品餐边柜,黑色柜体,玻璃柜门搭配金色元素与餐厅整体呼应
▲ 餐厅后方即是厨房入口,动线相邻布局合理
▲ 餐厅望向客厅视角
▲ 客厅,硬装不变的基础上采用壁纸串连空间,电视墙部分用不同的壁纸铺贴
▲ 飘窗加软垫,补充客厅沙发功能,窗帘拼色,提升空间色调饱和度
▲ 多功能房空间不大,榻榻米连接飘窗,一旁按尺寸设计书桌书柜,功能与颜值缺一不可
▲ 灰色系壁纸搭配白木色家具,简单的小台灯与小盆栽布置阅读一角
▲ 儿童房,绿色墙面铺贴一面亮黄色花样壁纸,跳跃的色彩让孩子的空间更具活力
▲ 白色铁艺床配ins风床品,简洁舒适
▲ 主卧,一面高雅的深色壁纸搭配贵族紫色窗帘,瞬间提升品位
▲ 深色背景搭配米色大床与单椅,铆钉金属等元素增加质感
设计 | 初懿设计(成都)
微信:18180817659
后台回复「初懿」可以看更多作品
媒体转载请注明装修33天并保留设计师联系方式
欢迎业主、设计师、装修公司免费投稿照片
装修33天商务合作微信:king194316
松爷店铺掌柜微信:yejia1702
初懿设计其他作品推荐,点击下图查看112平简约质感二居 多功能中岛餐厅
实用装修指南
装修33天 🏡 实用装修指南
喜欢我们的文章就随手转发到您朋友圈吧