点上方蓝字可关注 微信号:装修33天
▲ 建筑面积95平,造价29万(硬装+软装),采用原木系呈现质朴自然调
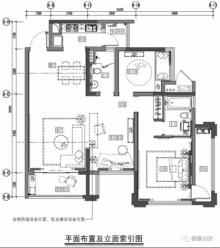
▲ 平面布置图
▲ 整体设计在满足功能性的同时,改变房屋多样性,以软装作为主导,打破以往的平面保守思路,追求软装与硬装的融合
▲ 餐厅位置墙面以镜面延伸空间感
▲ 餐厅与厨房动线相邻,桌上小景,生活需要充满仪式感
▲ 餐厅望向客厅方向
▲ 客厅与多功能房打通使空间功能更具多样性,充足的采光与无主灯顶面,空间简洁明亮
▲ 客厅休闲一隅,与室外绿植成景
▲ 烤漆面板作电视背景,装饰原木墙饰,与成品电视柜协调搭配
▲ 原木肌理体现自然与原生态
▲ 采用投影设配取代电视机,满足业主对观影的更高需求
▲ 开方式多功能房可作为客卧和书房的功能
▲ 书桌即是客厅沙发的靠背,兼具划分场域的功能
▲ 小孩房利用飘窗做坐榻,留出更多活动空间给予小朋友
▲ 主卧阳台在床头背后,以镜面暗门隔断,让主卧空间更具完整性
▲ 主卧集合收纳与主卫空间,采用镜面扩大视觉感,同样采用投影设备取代电视
设计 | 诺壹空间设计(广州)
微信:13450484809
媒体转载请注明装修33天并保留设计师联系方式
欢迎业主、设计师、装修公司免费投稿照片
装修33天商务合作微信:king194316
松爷店铺掌柜微信:yejia1702
实用装修指南
装修33天 🏡 实用装修指南
喜欢我们的文章就随手转发到您朋友圈吧