点上方蓝字可关注 微信号:装修33天
▲ 建筑面积89平,客厅与过道采用大理石瓷砖与木地板结合区分场域
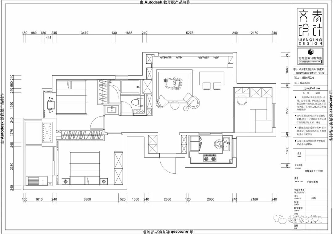
▲ 平面布置图
▲ 大横厅规划出客餐厅,卡其色皮质主沙发搭配黑色石纹茶几,一盏落地灯简约而精致
▲ 5米多长的超大采光窗设计成飘窗加软垫,配上电动垂直帘
▲ 取消传统电视背景墙,采用整体柜加投影的方式,既满足观影又增加储物空间
▲ 整个空间由大面积留白结合黑色哑光开放漆,让整体通透的同时也更加沉稳
▲ 餐厅靠窗放置,两把餐椅结合飘窗卡座,节省空间
▲ 北欧表情 Square Roots 系列黑桃木餐桌
▲ 光影随着时间在不停的变化,搭配清新的餐桌布置
▲ 餐厅望向客厅视角,轨道灯辅助主灯增加过道光线
▲ 客餐厅与书房之间采用大玻璃移门设计,让整个空间更加通透
▲ 书桌上方安装洞洞板和置物台
▲ 过道整面黑色护墙板,增加线性模拟把手,看起来像藏着一个大储物空间
▲ 次卧,网红款灰色壁纸搭配深一度灰色床背,深木色的床头柜增添沉稳色调
▲ 主卧,木地板半墙做成硬包,省去床靠,圆形床边桌造型圆润可爱
▲ 主卧的收纳柜兼具梳妆台与穿衣镜的设计,柱形软包作梳妆台背景
▲ 卫生间干湿分区,整体通铺灰褐色石纹瓷砖,墙排马桶,淋浴区设计导流槽
设计 | 文青室内设计(杭州)
微信:13588798462
后台回复「文青」可以看更多作品
媒体转载请注明装修33天并保留设计师联系方式
欢迎业主、设计师、装修公司免费投稿照片
装修33天商务合作微信:king194316
松爷店铺掌柜微信:yejia1702
文青室内设计其他作品推荐,点击下图查看118平黑白灰木简约 客餐厅书房一体化设计
实用装修指南
装修33天 🏡 实用装修指南
喜欢我们的文章就随手转发到您朋友圈吧