点上方蓝字可关注 微信号:装修33天
▲ 建筑面积80平,使用面积70平,总造价25万,奇葩的茶壶户型,以蓝灰为主调,自创混搭精致质感二居
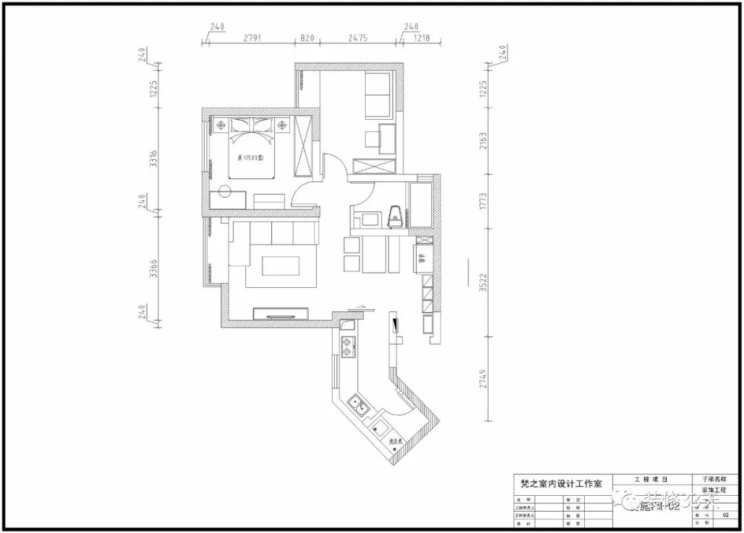
▲ 平面结构图
▲ 平面布置图
▲ 入户右侧设计鞋柜连接餐边收纳区,局部留空便于置物与收纳冰箱
▲ 餐厅,一面深蓝色墙面点缀置物架,严格把握家具尺寸,满足空间功能性的同时不显拥挤
▲ 一盏线性吊灯将光线聚集在餐桌,营造温馨的就餐氛围
▲ 客厅地面通铺原木色地板,两面对应的背景墙,延续客厅的深蓝基调
▲ 米灰色编织地毯搭配轻盈纤薄的茶几组,精致的软装摆件烘托家的格调
▲ 灰色转角沙发搭配蓝色背景墙,错落的层板用于装点背景与置物
▲ 飘窗安装百叶帘,控制光线,确保私密性,整体清新脱俗
▲ 安静深邃的蓝色背景墙搭配木质纹理层板,与电视柜材质呼应
▲ 客厅一角,呈现 INS 风的软装搭配
▲ 客厅望向餐厅方向
▲ 粉色谷仓门是厨房入口,给安静的蓝灰主调中注入一丝靓丽
▲ 厨房,黑白灰六边形地砖铺贴出灵动感,浅灰与粉色墙砖搭配折角白色橱柜,将奇葩户型完美化解
▲ 主卧,一种女神结合少女感的色调,软装布置高颜值睡眠空间
▲ 树叶壁纸铺贴出床头背景,对称的线性圆球壁灯与金色元素大床,给人一种精致的高级感
▲ 深蓝色的床头柜与整室主调的蓝色相互呼应
▲ 卫生间整体采用粉色与浅灰色瓷砖铺贴,自砌浴缸结合淋浴区,金色五金提升精致度
设计 | 梵之设计(成都)
微信:373454377
后台回复「梵之」可以看更多作品
媒体转载请注明装修33天并保留设计师联系方式
欢迎业主、设计师、装修公司免费投稿照片
装修33天商务合作微信:king194316
松爷店铺掌柜微信:yejia1702
梵之设计其他作品推荐,点击下图查看120平现代简约跃层 阳台装成麻将室
实用装修指南
装修33天 🏡 实用装修指南
喜欢我们的文章就随手转发到您朋友圈吧