点上方蓝字可关注 微信号:装修33天
▲ 使用面积120平,总造价35万,入户鞋柜满足收纳并兼具美观性,KD板的色彩选择让两面颜色呼应
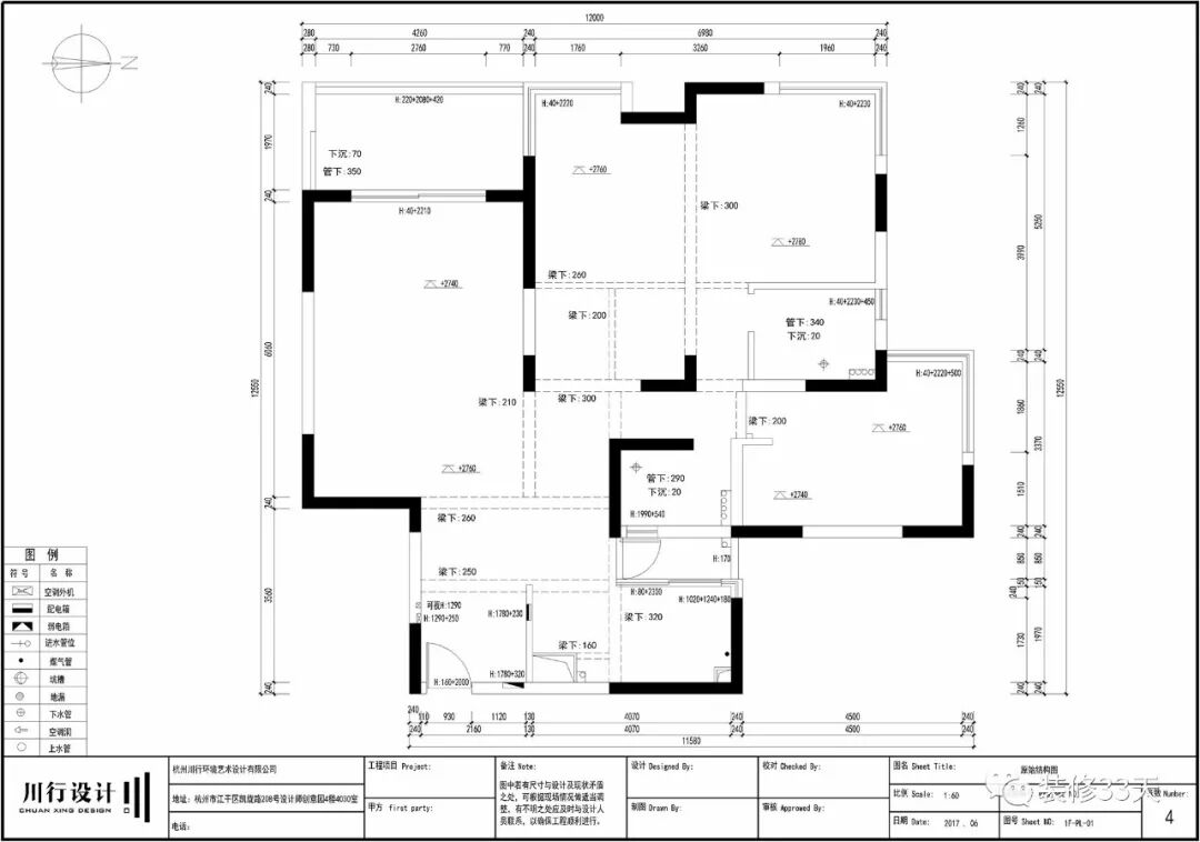
▲ 平面结构图
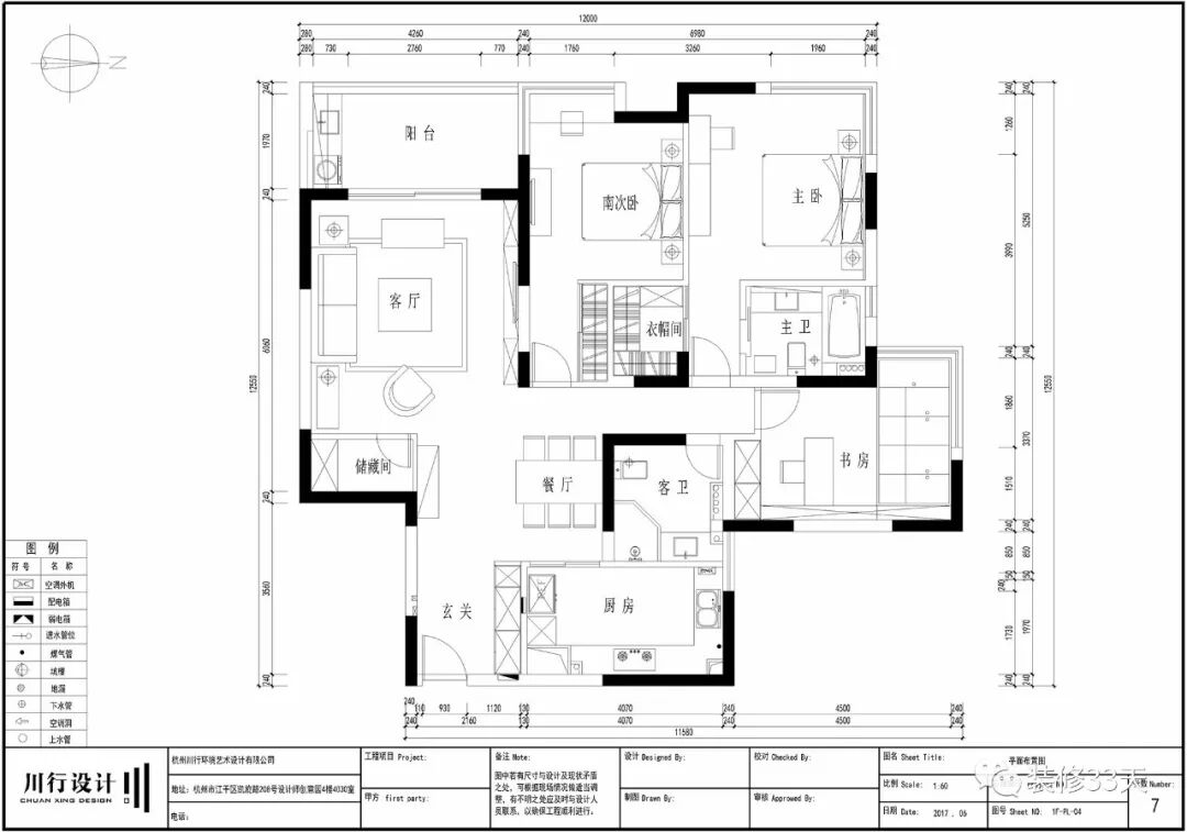
▲ 平面布置图
▲ 客厅,地面通铺水泥色地砖,极简顶面用点光源取代主灯,整体配色清简质朴
▲ 深灰色布艺沙发搭配灰色背景墙,点缀书法字画,麻编地毯规划机能场域的同时增添中式氛围
▲ 采用大茶桌取代传统茶几,提升整个空间利用率
▲ 韵味雅致的小景
▲ 电视背景墙是北欧极简风格,兼具电视墙与储物柜体的功能,KD板的运用和其他空间相互呼应
▲ 客厅望向入户视角,沙发侧墙隐藏储物间门片
▲ 餐厅整体延续水泥灰搭配木色基调,原木餐桌椅与木质拉槽顶面呼应,业主预先购买的屏风成为点睛之笔
▲ 拉槽顶面与餐厅背景相连,中式餐边柜实用又兼具韵味
▲ 餐厅望向客厅视角
▲ 厨房整体以简洁的灰白为基调,大面积无拉手柜体呈现现代北欧风格
▲ 阳台整体通铺木纹砖,一组吊柜与顶面齐平,满足洗衣区收纳
▲ 客卫,铺贴白色石纹瓷砖,木质台盆柜增添自然纹理,淋浴区墙面设计壁龛方便置物
▲ 书房一室多用,阳光榻榻米搭配书桌与开放式书柜,兼具实用性与高颜值
▲ 利用转角落地窗,搭配中式卷帘,打造品茶小憩一隅
▲ 次卧作儿童房使用,整体以简洁的木色北欧风为主调
▲ 主卧,木色元素从地面一直延伸至床背景,整体崇尚简约
▲ 主卧室的大面积落地玻璃引入室外景致,为灰木色的空间注入生机
▲ 主卫,整体通铺水泥砖,靠窗设置浴缸兼具淋浴机能
设计 | 川行设计(杭州)
微信:15868161644
后台回复「川行」可以看更多作品
媒体转载请注明装修33天并保留设计师联系方式
欢迎业主、设计师、装修公司免费投稿照片
装修33天商务合作微信:king194316
松爷店铺掌柜微信:yejia1702
川行设计其他作品推荐,点击下图查看单层90平黑白灰现代跃层 木色石纹显低奢内敛
实用装修指南
装修33天 🏡 实用装修指南
喜欢我们的文章就随手转发到您朋友圈吧