点上方蓝字可关注 微信号:装修33天
▲ 建筑面积96平,总造价35万,入户玄关柜简约的柜门弱化柜体的存在,对面则是使用的挂衣钩与墙镜
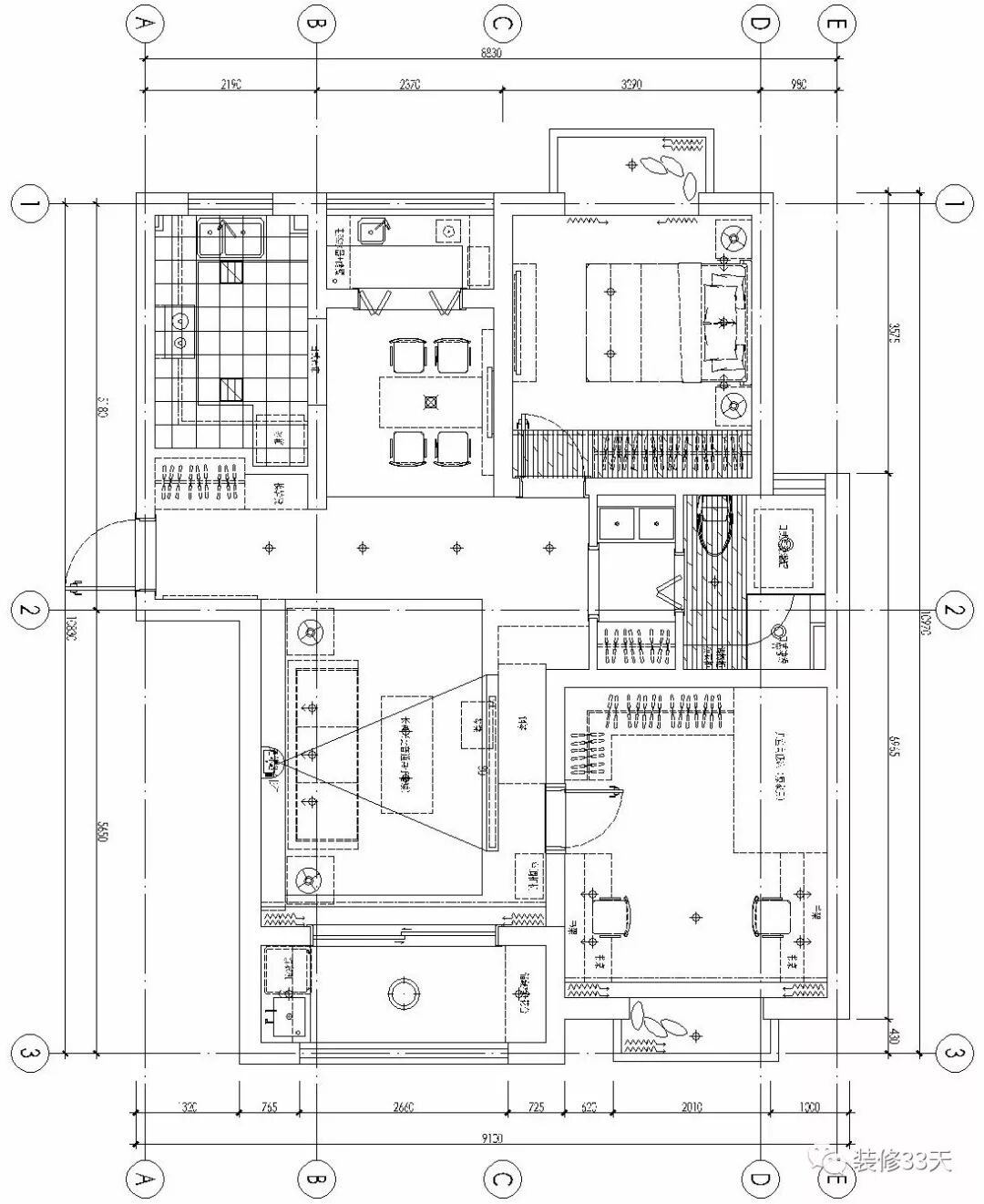
▲ 平面布置图
▲ 入户后左侧为餐厨区域,一面大黑板漆提供涂鸦与留言的功能
▲ 清新的绿色背景搭配原木色的家具,显得非常温馨
▲ 餐厅外的阳台设计成西厨空间,提供可以简餐与烘焙的场域,同时解放中厨空间
▲ 木色橱柜搭配白色薄包边台面,百叶帘让空间更显洋气,同时可随意控制光线明暗度
▲ 台下盆一边的墙体设计层板柜,收纳功能强大
▲ 中厨,地面通铺深灰色哑光砖,搭配白色墙砖,延续西厨木色地柜门片,上柜采用无拉手白色柜门
▲ 客厅作为公共区域,承担起居室中最多的使用功能,整体以木色为基调,呈现明亮轻盈的空间视觉
▲ 蓝色布艺沙发搭配灰色窗帘,米黄色背景墙采用线条柔美的装饰画,让家充满温馨感
▲ 沙发一角用实木框架取代传统的边几功能
▲ 沙发另一边留出钢琴的位置,提供双宝练琴的场域
▲ 整墙书架取代传统电视背景墙,收纳藏书,用投影加幕布来提供观影功能
▲ 阳台整体灰白主调,设计简洁的柜体,预留洗衣机位置,打造洗衣区
▲ 阳台另一侧是一组柜面极简的收纳柜,用于收纳生活用品
▲ 走廊以木门与长虹玻璃木栏栅隔断作端景
▲ 考虑生活中的实际情况,将大卧室留给双宝做儿童房,即有空间打造双人书桌与层板架
▲ 环保的高低床,满足两位小公主的就寝需求
▲ 主卧,延续清新背景墙,搭配木色家具,利用飘窗为卧室增加一处休闲场域
▲ 床尾原木色斗柜搭配先切花,自然舒适的视觉感受
▲ 卫生间干湿分区,提高使用效率
▲ 卫生间虽小,但颜值与功能一点都不逊色,小白砖,超白玻,黑色金属件,日式小深缸泡澡不占地
设计 | Tina_wang(上海)
微信:Tina_wang_design
后台回复「Tina」可以看更多作品
媒体转载请注明装修33天并保留设计师联系方式
欢迎业主、设计师、装修公司免费投稿照片
装修33天商务合作微信:king194316
松爷店铺掌柜微信:yejia1702
Tina_wang设计其他作品推荐,点击下图查看112平清新北欧混搭宅 高颜值主卧带五星浴室
实用装修指南
装修33天 🏡 实用装修指南
喜欢我们的文章就随手转发到您朋友圈吧