点上方蓝字可关注 微信号:装修33天
▲ 使用面积135平,总造价100万,入户,花砖地面搭配浅咖色墙面,木框墙镜与实木挂衣钩结合满足基本机能
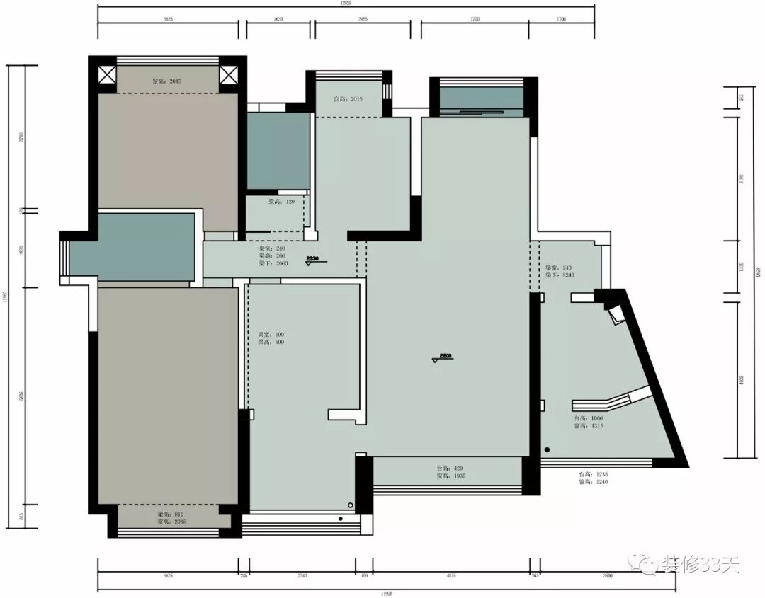
▲ 平面结构图
▲ 平面布置图
▲ 打掉原次卧墙,客餐厅融为一体,改造后的客餐厅拥有45平的通透空间
▲ 原木色地板与天花饰面板的呼应,营造森林感小木屋的温暖气氛
▲ 焦糖色皮质主沙发搭配原木茶几,点缀简约落地灯
▲ 客厅一整墙的书柜兼电视柜,满足爱阅读一家的藏书需求
▲ 客餐厅打通后,主沙发背景即是餐厅,空间互动性更好
▲ 餐厅延续木地板,以顶面设计区隔客餐厅场域,利用飘窗打造餐边休憩区
▲ 原木纹理的大餐桌配以不同款式餐椅,两盏大大的吊灯营造氛围
▲ 西厨的灰色岩板,与低调的艺术涂料,高级且沉稳
▲ 橱柜下方预留复古小冰箱的位置
▲ 打通原始厨房与生活阳台,改造出独立的中厨以及入户鞋帽间
▲ 纳入生活阳台的中厨,拓展了使用面积,并增添了空间采光,灰白基调的橱柜,设计错落台面
▲ 原始餐厅设计成书房,保持与客餐厅的互动,三联动艺术玻璃门片隔断空间
▲ 书房连接小阳台,保持书房的采光与视野,磁性黑板漆能展示照片又可涂鸦
▲ 客卫干湿分区,提高使用效率
▲ 儿童房,采用小主人喜欢的蓝红撞色,配以实用家具,打造休憩,玩耍,学习,练琴的多功能卧室
▲ 次卧为父母房,宁静简约,以浅色为基调,降低家具的存在感
▲ 主卧整体设计风格偏向简约,配色简洁自然,将近7米的超大衣柜,丰富墙面又提供巨无霸的收纳功能
▲ 背景墙选择意大利进口涂料,工艺复杂,纹理精美,打造别样的层次感
▲ 靠近大大的落地窗,打造静坐,阅读,思考的休闲一隅
▲ 主卧与主卫采用透明玻璃取代实墙
▲ 利用主卧大空间,在床侧设置简约的阅读书写区域
▲ 主卫,波纹花砖地面搭配灰褐色墙砖,壁挂马桶结合置顶收纳柜,打造实用舒适洗浴空间
▲ 设计团队与业主合照
设计 | 薄荷设计(深圳)
微信:15989542697
后台回复「薄荷」可以看更多作品
媒体转载请注明装修33天并保留设计师联系方式
欢迎业主、设计师、装修公司免费投稿照片
装修33天商务合作微信:king194316
松爷店铺掌柜微信:yejia1702
薄荷设计其他作品推荐,点击下图查看128平时尚现代混搭,整面书墙,玻璃折叠窗
实用装修指南
装修33天 🏡 实用装修指南
喜欢我们的文章就随手转发到您朋友圈吧